Merrill Lynch Bank
Ausgangssituation
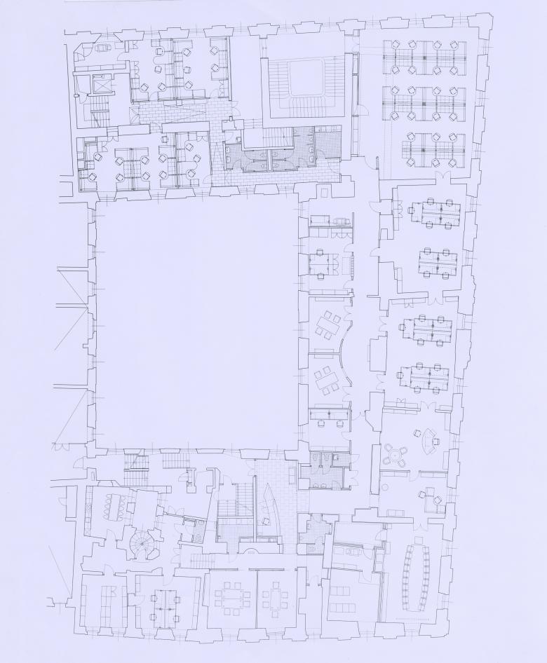
Die Büroetage im Palais Esterhazy in der Wiener City hatte trotz der prominenten Lage in der Wiener Innenstadt gravierende Nachteile:
Die relativ enge Innenstadt-Situation beeinträchtigte die Tagesbelichtung
außerdem war der Bestand verwinkelt und in viele kleine Räume unterteilt. So konnte die relativ große Fläche (1.200 m2) nicht adäquat genutzt werden.
Dazu kam, dass gerade der Eingangsbereich, also der erste räumliche Eindruck für den Kunden, viel zu klein war.
Konzept
Durch Eliminieren der Zwischenwände, Öffnen von Durchgängen und einheitliche Wandpaneele besonders im Kundenbereich wurde für fließende Raumübergänge und angenehme Großzügigkeit gesorgt.
So ist die Beengtheit und Kleinteiligkeit der Bausubstanz durch das Zusammenwirken einer Vielzahl kleiner Maßnahmen nicht mehr spürbar.
Das beginnt beim Foyer: Das große, geschwungene Pult dominiert den Raum und gibt doch gleichzeitig die Richtung an, leitet den Besucher mit sanfter Dynamik weiter. Der Durchgang zum Korridor wurde ganz geöffnet und eine Blickbeziehung vom Foyer bis zur Chefsekretärin geschaffen.
Zusätzlich wurden die Wände verspiegelt: Ein Kunstgriff, den schon Loos anzuwenden wusste.
- Année
- 1996
- Project Status
- Construit








