Liceo Cantonale di Bellinzona

Bellinzona, Suisse
Visualisation © Filippo Bolognese
Visualisation © Filippo Bolognese
Visualisation © Filippo Bolognese
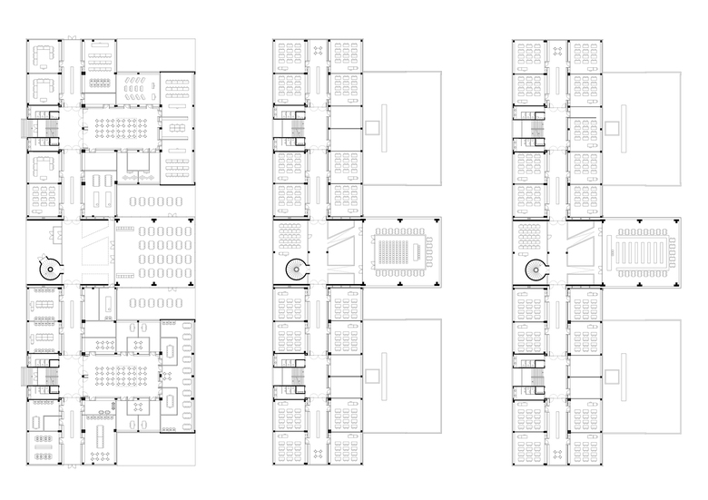
Dessin © Durisch+Nolli
Dessin © Durisch+Nolli
Dessin © Durisch+Nolli
Année
2018
Project Status
Design
Client
Repubblica e Cantone Ticino, Dipartimento delle Finanze e dell'Economia, Divisione delle Risorse, Sezione della Logistica
Équipe
Pia Durisch, Aldo Nolli, Niccolò Nessi, Irene Giovanetti, Ulrike Krommer
Bauingenieur
Schnetzer Puskas Ingenieure AG
HLKS-Planung
Tecnoprogetti SA
Elektroplanung
Erisel SA
Bauphysik
IFEC ingegneria

Autres projets de Durisch + Nolli Architetti 

FHZGR Fachhochschulzentrum Graubünden
Coira, Suisse
Loft B
Riva San Vitale, Suisse
Kloster S. Maria Assunta
Claro, Suisse
Verwaltungszentrum VBS Bern
Bern, Suisse
Stabile Amministrativo
Lugano, Suisse