Wohn- und Geschäftshaus «Kreisel Chotten»
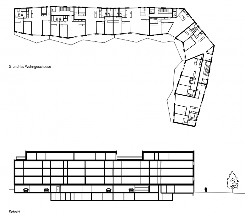
Am westlichen Rand der Gemeinde Sursee gelegen setzt die Wohnüberbauung beim Kreisel Chotten einen markanten Punkt in das zentrale Quartier. Elegant nimmt es auf der Eckparzelle seinen Platz ein. Das winkelförmige Gebäude reagiert auf die stark frequentierte Strassenkreuzung mit raffinierter Architektur und verleiht dieser einen urbanen Charakter.
Das Sockelgeschoss auf Strassenniveau beherbergt die Einstellhalle und die notwendigen Nebenräume sowie zum Kreisel gerichtet eine gewerbliche Nutzung in Form einer Galerie.
Die Obergeschosse dienen vollumfänglich einer Wohnnutzung. Die 3.5 und 4.5 Zimmerwohnungen werden über drei separate Treppenhäuser erschlossen. Die Eigentumswohnungen bieten auf der von der Strassenseite abgewandten Seite grosszügige Balkone zu einer attraktiven Hofzone mit viel Grünfläche.
Die Fassade mit Alucobondplatten und Betonelementen verkleidet, rundet das repräsentative Erscheinungsbild strassenseitig ab.
- Année
- 2015





