Schweizerische Botschaft Singapur

Zufahrt und Zugang zur Botschaft
Photo © Foto: Khoo Guo Jie

Das 1984 erbaute Kanzleigebäude präsentiert sich als flacher Bungalow inmitten einer parkähnlichen Landschaft am Rande von Singapur. Ein respektvoller Umgang mit dem Bestand führte zu minimalinvasiven Lösungen. Die quadratische Form des Baukörpers wurde vervollständigt und durch eine Erweiterung der Gebäudehülle nach aussen optimiert. Die bisher offene Ecke am Haupteingang wurde ergänzt und die Aussenfassade um einen Meter nach aussen verschoben, um damit Raum für Aufenthaltszonen und eine Verdreifachung der Arbeitsplätze zu schaffen. Die neue Tragstruktur ist auf wenige präzise Massnahmen beschränkt, die sich sowohl am Bestand orientieren als auch die neue räumliche Gliederung wesentlich prägen. Ein separater, gläserner Konferenzraum wurde im Bereich des Eingangs neu geschaffen. Neben diesem Körper bleibt ein überdachter Eingangsbereich vor den Eingängen frei. Dieser Ankunftsbereich ist als leicht erhöhte Plattform gestaltet, die einen Ausblick ins umgebende Grün bietet. Das darüber liegende Dach ist zur Ecke hin leicht angehoben – eine einladende Geste – die für die Offenheit und Transparenz des Landes stehen.

Botschaftsgebäude Singapur
Photo © Foto: Khoo Guo Jie
Luftaufnahme Botschaftsgebäude Singapur
Photo © Foto: Khoo Guo Jie
Konferenzraum und Einfahrt Einstellhalle
Photo © Foto: Khoo Guo Jie
Zugang von der Residenz, Konferenzraum
Photo © Foto: Khoo Guo Jie
Open Space mit Blick in den Innenhof
Photo © Foto: Khoo Guo Jie
Bürobereich mit Glaswänden und Einbauten aus Eichenholz
Photo © Foto: Khoo Guo Jie
Situation
Dessin © Berrel Kräutler Architekten
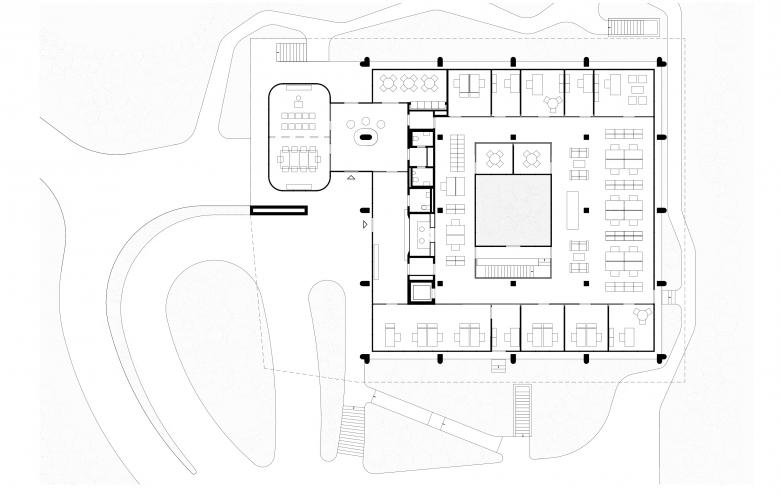
Grundriss Erdgeschoss
Dessin © Berrel Kräutler Architekten
Schnitt
Dessin © Berrel Kräutler Architekten
Fassade West
Dessin © Berrel Kräutler Architekten
Année
2024
Client
Bundesamt für Bauten und Logistik
Équipe
Johannes Maier, Jaime Rodriguez, Beatriz Morales de Setién, Ulrike Köpke
Landschaftsarchitektur
ORT AG für Landschaftsarchitektur, Zürich
Bauingenieurswesen
Dr. Neven Kostic, Zürich
Bauphysik
Kuster + Partner, Zürich
Elektroplaner
Mettler + Partner AG Consulting, Zürich
HLKS-Ingenieure
Ingenieurbüro Brügger GmbH, Frutigen
Lichtplaner
Saturday Design, Singapur

Autres projets de Berrel Kräutler Architekten 

Schwimmbad Sonnenberg Engelberg
Engelberg
Alterszentrum Kreuzlingen, Ersatzneubau Alterswohnungen
Kreuzlingen, Suisse
Verwaltungsgebäude UVEK Campus
Ittigen, Suisse
Verwaltungsgebäude BCFWS für die AHV
Genf, Suisse
Sport- und Freizeitanlage Weyermannshaus
Bern, Suisse