Vertical Village
Eckernförde, Alemania
Umgestaltung innerhalb der Stadtmodernisierung
Der seit vielen Jahren brachliegende Industrie- und Fischereihafen in Eckernförde wird derzeit revitalisiert und wegen der attraktiven Lage zur Innenstadt und Strand mit einer Mischnutzung aus Gewerbe und Wohnen bebaut. Ein Parkhaus am Rand der Hafenfläche sprengte mit seiner trivialen äußeren Gestalt und Ausmaßen die Altstadtstrukturen und war stark sanierungsbedürftig
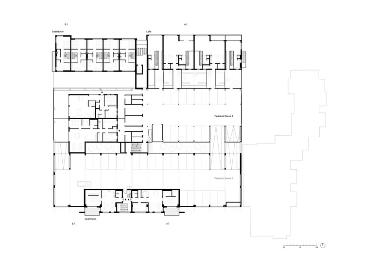
Mit verschiedenen Maßnahmen haben wir die Integration des Parkhauses in das Quartier mit seiner lebendigen Vielfalt an Wohn- und Gewerbehäusern erreicht. Die seitliche Erweiterung des Gebäudes umfasst Stadtwohnungen und Gewerbeeinheiten. In einem Teilbereich des Parkhauses wurden Flächen zu modernen Lofts entwickelt, die direkt über Carports auf dem Dach des Parkhauses erschlossen sind. In aufgestockten Teilen entstanden daneben Bungalows mit Aussicht über die Stadt und die Bucht. Die wegfallenden Parkflächen wurden durch das Ausgraben einer zusätzliche Ebene unter dem Gebäude kompensiert. Für die Versorgung des gesamten Quartiers wurde eine Energiezentrale der Stadtwerke in das Parkhaus integriert.
Integration in die urbane Struktur und das neue Quartier
Die Herausforderung bestand darin, die verschiedenen Teilbereiche entwurflich und konstruktiv zu einem Ganzen zu entwickeln und das Projekt insgesamt zum Teil des Quartiers werden zu lassen. Bei der Fassadengestaltung wurde der Anspruch umgesetzt, die vielfältige Nutzung jeweils erkennbar zu machen und dennoch ein homogenes, zusammengehöriges Bild zu entwerfen.
Die Parkbereiche sind in der Sockelzone mit gelochtem Ziegelmauerwerk und in den oberen Ebenen mit offenen Brüstungen und bunten Aluminiumlamellen verblendet. Diese horizontale Gestaltung tritt in den Dialog mit den vertikal gegliederten Fassaden der Lofts. Die Lofts sind mit Loggien, Materialien und Farben individuell gestaltet. Auch die Fluchttreppe auf der Südfassade verbindet durch die davor gestellte Streckmetall-Einhausung Parkhaus und Bungalows.
Schaffung neuer Wohnräume im alten Parkhaus
Das allgegenwärtige Nebeneinander von Wohnen und Parken und der Einbezug von prägenden Elementen des Parkdecks in den insgesamt 22 Wohnungen schafft ein interessantes gestalterisches Spannungsfeld. Die zweigeschossigen Lofts sind integriert in das Parkdeck und verfügen über Südterrassen auf den oberen Geschossen sowie visuell abgetrennte Carports. Die Bungalows auf zwei Ebenen sind über Gartenwege mit Vorgärten, Schuppen und Pforten erschlossen. So entsteht inmitten des alten Parkhauses eine beinahe dörfliche Gebäude- und Wohnstruktur.
Die Nutzung zweier ehemaliger Lichthöfe ermöglichte die Realisierung der Energiezentrale inklusive eines Groß-BHKWs und Wärmespeichern ohne wertvolle externe Fläche beanspruchen zu müssen. Für die Untergrabung des Parkhauses in direkter Nähe des Meeres mussten weitere Bohrpfähle eingesetzt und die neue Parkebene selbstständig gegründet werden. Am gesamten Gebäude inklusive aller technischen Bauteile wurde eine aufwendige Betonsanierung durchgeführt.
- Arquitectos
- rimpf Architektur & Generalplanung
- Año
- 2014
Proyectos relacionados
Magazine
-
-
-
-
Un despatx madrileny signa un visionari catalitzador urbà en West Palm Beach
Andrea Pala | 29.11.2018 -
L'arquitectura de Francis Keré en escena en el Museu ICO de Madrid
Andrea Pala | 28.10.2018


























