Landesgericht St. Pölten
St. Pölten, Austria
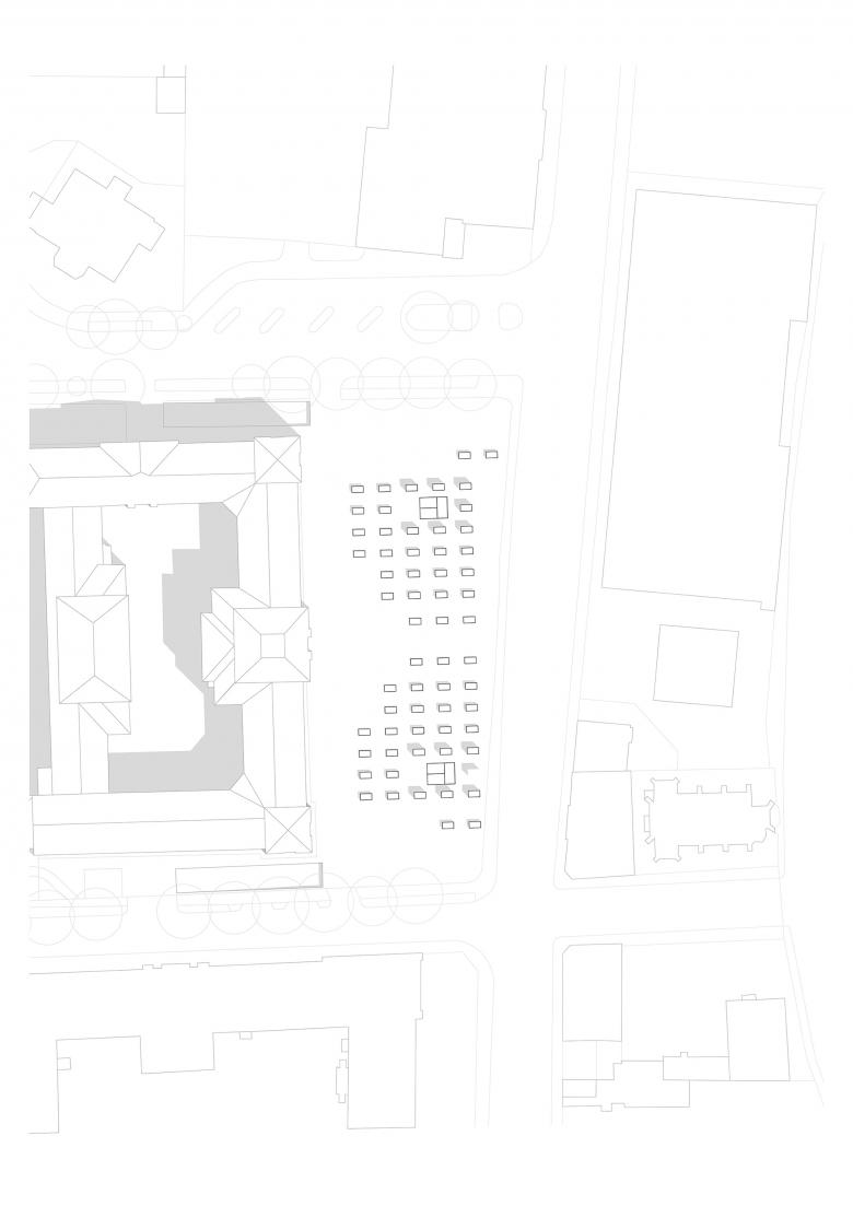
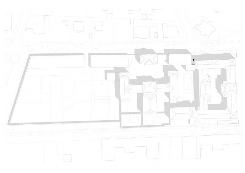
Die goldene Maske – Die Erweiterung und Erneuerung des Gerichtsgebäudes St. Pölten inkludiert einen neu entwickelten Zubau für Büronutzungen.Städtebaulich schließt der neue Zubau die Lücke zwischen altem Gerichtsgebäude und der angrenzenden Justizanstalt in Form einer kohärenten Ergänzung des denkmalgeschützten Baus mit einem zeitgenössischen Zubau, der einerseits selbstbewusst und eigenständig als Solitär nach außen wahrnehmbar ist, zugleich jedoch den historischen Kontext respektiert und zwischen moderner und historischer Formensprache zu vermitteln vermag.
Die drei Geschosse des Altbaus werden bei gleichbleibender Traufenhöhe barrierefrei mit dem neuen fünfgeschossigen Baukörper verknüpft, in dem in erster Linie Büroräume für das Oberlandesgericht, die Staatsanwaltschaft und das Bezirksgericht untergebracht werden. Der Platz direkt vor dem bestehenden Gebäude wird zu einem attraktiven urbanen Platz mit Aufenthaltsqualitäten und angegliederter Tiefgarage umgestaltet.
Das Entwurfskonzept teilt das Raumprogramm des Erweiterungsbaus in dienende und bediente Teile auf. Daraus resultieren zwei separate Baukörper. Der Hauptbaukörper beherbergt nur Büroräume und die Amtsbibliothek, der dienende Baukörper die Stiegen, den Fahrstuhl, die WCs und Serverräume. Während dadurch der Hauptbaukörper im Inneren mehr Flexibilität erlangt, kommt dem Nebenbaukörper bei der barrierefreien Anbindung an den Altbau und der Vermittlung zwischen Alt und Neu eine wichtige Rolle zu. Durch eine gläserne, architektonische Fuge in Form des Erschließungskörpers wird sowohl eine Berührung und Verbundenheit als auch ein klarer Abstand artikuliert. Die Trennung der beiden Funktionsbaukörper wird auch dadurch verstärkt, dass sie in ihrem Erscheinungsbild und ihrer Materialität bewusst unterschiedlich behandelt werden.
Insgesamt nimmt das neue Gebäude die Eigenschaften des historischen auf, ohne jedoch auf eine eigenständige, unverwechselbare und zeitgemäße Artikulation zu verzichten. Durch den dem Material eigenen Glanz erhält das Gebäude einen angenehmen und warmen Charakter, der sich im tagesrhythmischen und auch jahreszeitlichen Wechsel der Lichtverhältnisse kontinuierlich verändert und so das Gebäude buchstäblich zum Leben erweckt.
- Arquitectos
- Kronaus Mitterer Architekten
- Año
- 2011
- Project Status
- Construido
- Cliente
- BIG - Bundesimmobiliengesellschaft m.b.H.
- Partner
- KNOWSPACE
- Partner
- Vasko+Partner
- Wettbewerb 2007
- 1. Preis
Proyectos relacionados
Magazine
-
-
-
-
Un despatx madrileny signa un visionari catalitzador urbà en West Palm Beach
Andrea Pala | 29.11.2018 -
L'arquitectura de Francis Keré en escena en el Museu ICO de Madrid
Andrea Pala | 28.10.2018










