Neubau 5 Eigentumswohnungen
Lyss, Switzerland
Ort
Die Qualität des Standorts ist die zentrumsnahe Lage gleich neben der Schule und das umgebende Naherholungsgebiet. Der Bahnhof und das Stadtzentrum sind in 10 Minuten zu Fuss erreichbar. Die Parzelle zeichnet sich durch die Hanglage und die Südorientierung gegen den Hang aus.
Konzept
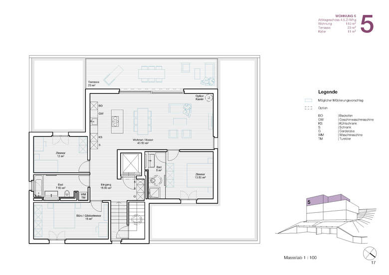
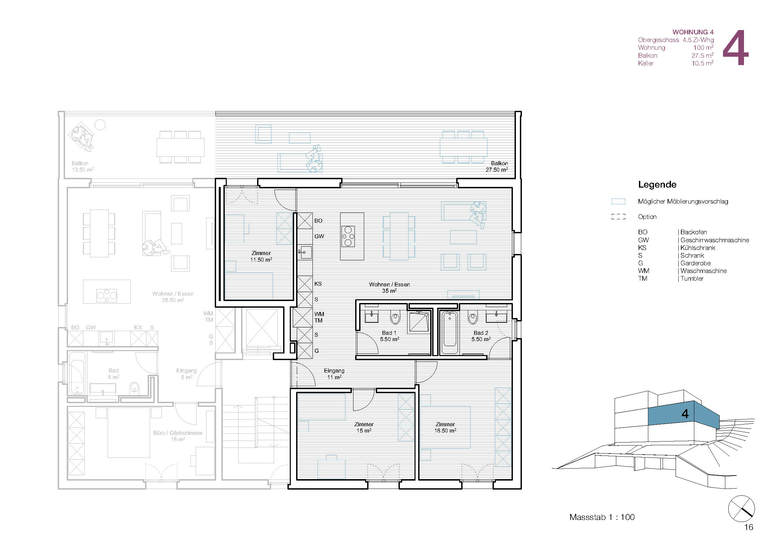
Wohnen im Grünen, stellt den Grundgedanken des architektonischen Konzeptes des Mehrfamilienhauses dar. Volumetrisch wird die Liegenschaft als eine Einheit gelesen. Dank der Hanglage bieten sich die Technikräume und Parkplätze im Sockelgeschoss an. Die fünf Wohnungen werden durch ein zentrales Treppenhaus mit Lift erschlossen. Jedes Geschoss weist seine eigenen Aussenraumqualitäten auf. Die Wohnungen im Erdgeschoss verfügen über einen grosszügigen, geschützten Garten mit einer intimen Atmosphäre. Die Wohnungen im Obergeschoss profitieren von grossen Balkonen. Die Attikawohnung, bietet einen wunderschönen Ausblick von der grosszügigen Terrasse und wird direkt durch den Aufzug erschlossen.
Innenraum
Die Grundrisse sind einfach und rationell gegliedert. Sie profitieren von optimaler Flächenausnützung und Lichtverhältnissen. Die Wohnräume sind gegen Süden orientiert, die Schlafräume gegen Norden. Die grösseren Wohnungen verfügen über zwei Nasszellen Dusche/Bad, die kleineren über ein Badezimmer. Die modernen Küchen sind offen gestaltet, mit einer Kochinsel, und mit hochwertigen Küchenapparaten ausgestattet. Die Materialisierung ist modern, schlicht und entspricht dem heutigen Eigentumswohnungsstandard. Die Wohnungen verfügen über eigene integrierte Waschmaschinen und Trockner.
- Arquitectos
- apart architektur
- Año
- 2018
Proyectos relacionados
Magazine
-
-
-
-
Un despatx madrileny signa un visionari catalitzador urbà en West Palm Beach
Andrea Pala | 29.11.2018 -
L'arquitectura de Francis Keré en escena en el Museu ICO de Madrid
Andrea Pala | 28.10.2018










