Hyatt Regency Beijing Shiyuan
Beijing, China
Project Name: Hyatt Regency Beijing Shiyuan
Category: Hospitality
Completion Time: April 2019
Site Area: 15,625 m²
Location: Beijing, China
Client: Beijing Shi Yuan Investment Development Co., Ltd
Interior Design Firm: CL3 Architects Limited (https://www.cl3.com/)
Design Team: William Lim, Joey Wan, Fion Li, Zhou Jie, Zhu Jian, Noel To, Simon Ho, Tommy Tsoi, Him Ng
Photographer: b+m studio
Design Concept - Green life • blending into nature
Yanqing District is located about 75 km north-west of Beijing. It is home to the popular Badaling section of the Great Wall. It is not only rich in historical sites and natural landscape but also the outdoor attractions. The district will host the International Horticultural Expo in 2019 and Winter Olympics in 2022. It is a popular destination for all kinds of travelers.
Hyatt Regency Beijing Shiyuan is designed to create a green life living, blending into nature in order to obtain the sensation experience of living surrounded by the mountain, river, lake, wild birds and flowers.
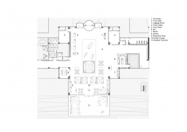
Entrance Reception Lobby - Mountain
Lobby design is inspired by the mountain landscape and the Great Wall in Badaling. Using layers and overlapping big slabs of natural marble with lighting effect to create the endless mountain silhouette as a back drop for the reception. A large scale contemporary copper metal mountain sculpture with rain glass drops suspended at the centre of the lobby, echo with the dark natural stone installation art on the floor become a focal point of the entire lobby.
The Interior lobby ceiling used 3 different level steps with light trough to enhance the architectural pitch roof design. It made the lobby overall space more towering.
Lobby Lounge – Winter Ski
Lobby Lounge is inspired by the winter skiing chalet. The wooden ceiling sloping ridge extends from the lobby created a more comfortable leisure and sit-in space for the lounge. The lounge floor finished with natural warm wood and area rugs that resemble grass land. The large comfortable seats and sofas with variable combination of settings accommodated different needs. The floor lamps and magazine racks design are inspired by the skis, snow board and firewood. There is also a library full of book of winter sports, plants and garden art as well as accessories and displays which all connected to the Winter Olympics, the Horticultural Expo and the beautiful landscape of Yanqing.
Conference area – River
Staircase design is not just for function, to link up the ballroom floor and the conference rooms’ floor, but a wooden sculpture, it is light and artistic.
Conference rooms design is flexible with variable combination space. The warm wood veneer wall with natural texture stone floor and artistic style carpet with texture and different shades, created a warm and yet elegant meeting atmosphere.
F&B Area – Garden
All Day Dinning – Indoor Garden
The all-day dining area is designed with the theme of “Indoor Garden”.
There is a huge flower-colored mosaic wall along the entrance wooden vault ceiling hallway of the restaurant make guests feel like entering the ocean of flowers. Reception counter was made of the ancient tree trunk as the base with a big slab of smooth white marble countertop that created a strong material contrast. It is both modern and natural, forming a bright spot.
In additional, to use texture glass with dark metal frame partition and doors and outdoor furniture and light fitting completed the indoor green house look.
The pergola and green radish climb along the open dining area to continue the world of flowers at the entrance. Using white marble, light wood, fresh and bright, with soft and lively colors upholstery created a warm, fresh and comfortable Dining environment.
The restaurant like a spring breeze all year around, warm and pleasant, it allows guests to fully feel the joy and comfort of holiday.
Chinese Restaurant – Chirping birds and fragrant flowers
With the theme of “Chirping birds and fragrant flowers”, the design approach of the Chinese restaurant is inspired by the local mountain villages.
The entrance wall of the Chinese restaurant along the hallway is finished by the traditional Chinese dark grey roof tiles.
As soon as you enter the entrance console area, there are the ceiling with partial wooden lattice, the flowers and bird’s mosaic inlay flooring on top of the natural stone floor and the birdcage style lamps casting interesting shadow on the wall, which created the warmth of the local village, prompting people to enter the Chinese restaurant.
Inside the open dining area, there is a full height cabinet of display of Chinese tea and tea pots as a feature wall. The wall by the window bay also finished with special flowers and birds feature glass to enhance the design theme.
Inside the private dining rooms, the Chinese-style ridge truss echoes the architectural elements of the public area. The exquisite details of the furniture highlight the VIP's respect. The diversity of the materials is rich and fine such as the custom pattern rug, the soft cushion and fine leather upholstery, the texture glass and the custom leaf pattern natural stone floor.
Regency Club
The design of the Hyatt Club is simple, modern and sophisticated. The overall mood is smart and warm. The natural wooden floor and wood stone are the main materials. Using wood truss design on the architectural slope ceiling highlighted the architectural form of the space.
The furniture and lamps are more stylish and energetic. The contemporary artwork and carpet design are based on nature and complement the overall hotel style, green life.
Guestroom – Grassland and Nature
Yanqing, is the National Park, with four Seasons stunning Nature. Guestroom is designed to create the living back to nature.
The Guestroom corridor carpet is designed to resemble Kangxi grassland in Yanqing, which makes guests to feel like walking on the grass, back to the nature. By each of the guestroom entrance door, there is a hanging bird -lamp to welcome guests.
The color scheme inside the room is natural, mainly in beige, brown and different shades of green. Using natural warm wood finish on floors, door and furniture with country style pendant lights created a warm relax resort look.
In order to highlight the nature concept and to reflect the Horticultural Expo in 2019, there are 9 different local endangered plants and flowers well selected for different rooms as a focal feature artwork of the room design.
Show closet design created a more open and convenient space for the guests. The big window design in the bathroom also allows natural light coming in, to make the room look bigger and brighter. The vanity counter is designed to like a piece of Chinese style loose furniture with 4 oblique wooden legs which make the bathroom look elegant and homey.
- Arquitectos
- CL3 Architects
- Año
- 2019
Proyectos relacionados
Magazine
-
-
-
-
Un despatx madrileny signa un visionari catalitzador urbà en West Palm Beach
Andrea Pala | 29.11.2018 -
L'arquitectura de Francis Keré en escena en el Museu ICO de Madrid
Andrea Pala | 28.10.2018





















































