Dalarna House
Viksö, Sweden
There is a strong summer house tradition in Sweden celebrating the great outdoors and enjoying the precious sun-filled days in the countryside. Located three hours north of Stockholm, in a forest area of silver birch and pine trees on an isolated 2000 square metre plot, Dive Architects have designed a home that will increasingly merge with the surrounding nature over the years.
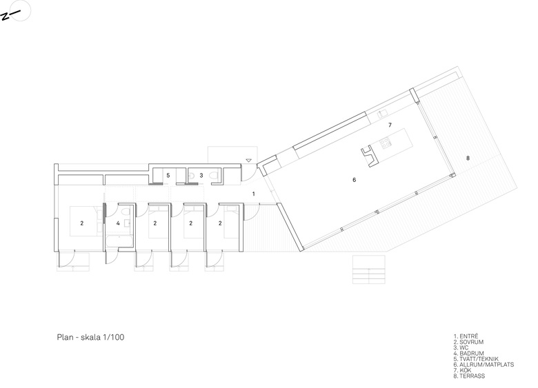
It is situated on a steep sloping site, along a ridge, divided into two rectangular volumes with lean-to roofs sloping in opposite directions; one for living, the other for sleeping. The roof shapes orientation is articulated with vertical and horizontal cladding. At the meeting point of the two volumes the house is slightly angled forming the main entrance and a sheltered outdoor seating area. This also makes the most of the different views depending on whether you look up to the forest or down to the lake.
The house was specifically situated along a north to south axis so that the homeowners can have the morning sun at breakfast and, as the day goes on, enjoy the sunset from the master bedroom. The construction uses timber framing built on a concrete floor slab and is clad in pine treated with a traditional timber preservative. A mix of sliding doors and fixed glass was used throughout the house. Every bedroom has access to the outside, allowing access from the bedrooms to the outdoors.
The living room, dining area and kitchen are fused together around a rendered brick fireplace and kitchen island which forms the focal point. The outdoor deck is partly covered extending the kitchen for outdoor dining. The whole setting offers an uncomplicated and relaxing home.
- Arquitectos
- Dive Architects
- Año
- 2016
- Cliente
- Private
- Equipo
- Andy Nettleton, Ia Hjärre, Valentino Barbu
- Structural Engineer
- SD Project
- Main Contractor
- Helob Bygg AB
Proyectos relacionados
Magazine
-
-
-
-
Un despatx madrileny signa un visionari catalitzador urbà en West Palm Beach
Andrea Pala | 29.11.2018 -
L'arquitectura de Francis Keré en escena en el Museu ICO de Madrid
Andrea Pala | 28.10.2018














