Chalet Bellavista
Flims Waldhaus, Switzerland
Um 1878 wurde das erste Châlet direkt an der Hauptzufahrt zu Flims Waldhaus gebaut und verfügte über sowohl günstige Hotelzimmer als auch Bedienstetenunterkünfte. Es stand mit seinem schlichten Baukörper in starkem Kontrast zu den übrigen prunkvollen Hotelgebäuden aus der Gründerzeit.
Das jahrzehntelang ungenutzte Gebäude musste 2006 abgerissen werden, der Neubau sollte die historische Gebäudeform modern interpretieren. Dies spiegelt sich insbesondere bei der Gestaltung der städtebaulich wichtigen Ost- und Westfassaden wider.
Das Gebäude wurde als Minergiehaus konzipiert. In das Dach wurde eine Photovoltaikanlage integriert, ausserdem sind kontrollierte Lüftung mit Wärmerückgewinnung und Wärmepumpe dezentral steuerbar.
Zur Strasse im Norden schützt die massive, nur von wenigen Fensterschlitzen unterbrochene Schale aus Dämmbeton, nach Süden gibt eine Glasfront nicht nur den Blick auf die Berge und den Flimser Grosswald frei sondern sorgt auch für Wärmegewinne im Winter.
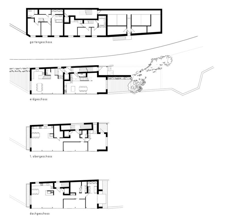
Die 4 offen gestalteten Wohnungen sind individuell über zwei Treppen, die entlang der Hauptstrasse angeordnet sind, erschlossen. In den zwei unteren Geschossen befinden sich zwei 4½-Zimmer Maisonette Wohnungen, die beiden oberen Etagen sind jeweils zu 3½-Zimmer Geschoss-Wohnungen ausgebaut und vermitteln Loft-Charakter.
- Arquitectos
- HP Fontana & Partner AG
- Año
- 2009
Proyectos relacionados
Magazine
-
-
-
-
Un despatx madrileny signa un visionari catalitzador urbà en West Palm Beach
Andrea Pala | 29.11.2018 -
L'arquitectura de Francis Keré en escena en el Museu ICO de Madrid
Andrea Pala | 28.10.2018










