Stadt Weimar – Haus der Weimarer Republik
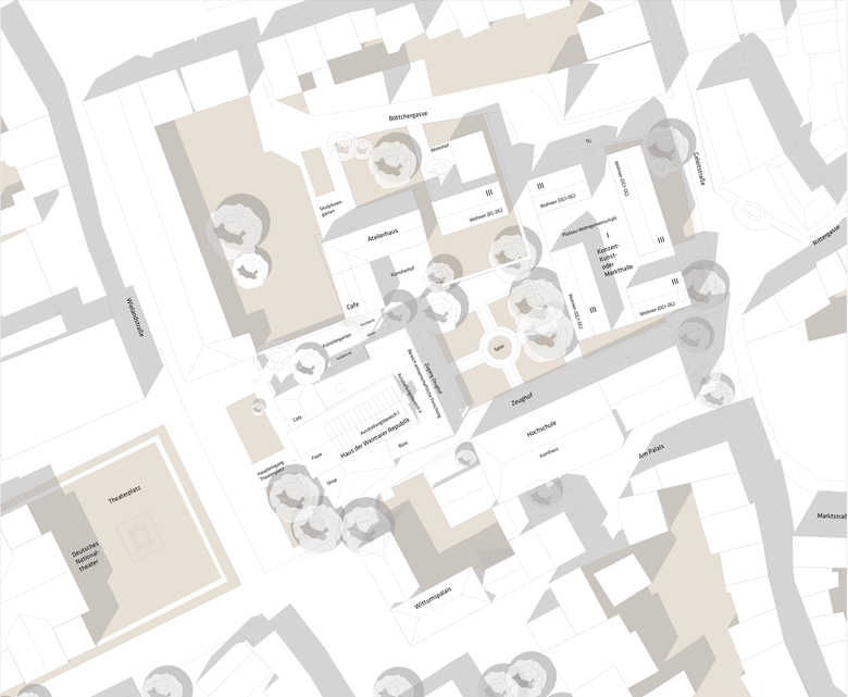
„Der Konzeption dieser Arbeit führt zu einer sehr einprägsamen Baufigur, in welcher der stadträumliche Ansatz und die architektonische Idee sich ideal ergänzen. Die städtebauliche Konzeption eines neuen Platzes auf der Ostseite produziert eine schöne Raumfolge vom Theaterplatz über den neuen Platz bis zum Platz am Donndorfbrunnen. Während der bedeutungsschwere Theaterplatz ein eher steinerner Platz ist, soll – und das wird von der Jury befürwortet - der neue Platz eher eine grüne Stadtoase sein. Dabei ist für den Entwurf wichtig, dass beide Plätze durch die Süd-und-Nord-Passage so eng wie möglich verbunden sind und zum Flanieren einladen - an der Südseite durch den engen, steilen Pfad, an der Nordseite aber durch einen relativ weiten Raum mit großzügiger Freitreppe. Diese Bewegungslinien finden dann in der weiteren städtebaulichen Lösung ihre Fortsetzung, wobei anzumerken ist, dass die stark historisierende Freiflächengestaltung des Platzes zu überdenken wäre. Die städtebauliche Lösung insgesamt gliedert die Stadträume in sinnvoller Weise, insbesondere wäre – wie im Entwurf vorgesehen – die Einrichtung einer öffentlichen Kulturfunktion im Gefolge der Platzräume zu begrüßen. Im Detail sieht die Jury hier allerdings Korrekturbedarf.
Die Architektur des Hauses nun antwortet auf die stadträumliche Konzeption durch einen starken Solitär, welcher vom Raum der Stadt quasi umspült wird. Dem Mauerfragment des alten Künstler- bzw. Zeughauses wird in strenger Form eine Kolonnadenreihe aufgesetzt, welche zugleich einen Umgang, einen Wandelgang erzeugt. Und dieser fasst und verbindet die vorhandenen Strukturen und erweist sich als der besondere Kerngedanke des Entwurfs. Einerseits wird hier die Figur des Tempels oder der Stoa aufgerufen, möglicherweise ein architektonisches Zeichen für die alte Polisdemokratie (die Verfasser verweisen darauf), andererseits verbindet diese Schicht der Arkaden Innenraum und Außenraum, Haus und Platzraum auf sehr schöne Weise, weil dadurch auch der Mensch, das Publikum als Herr der Szene auftreten kann und weil hier das Höhenniveau von Theaterplatz und Ausstellungsebene zu einer Art Stadtterrasse über dem grünen Platz geführt wird. Zudem vermittelt die Kolonnade einerseits eine gewisse Monumentalität, andererseits große Leichtigkeit.
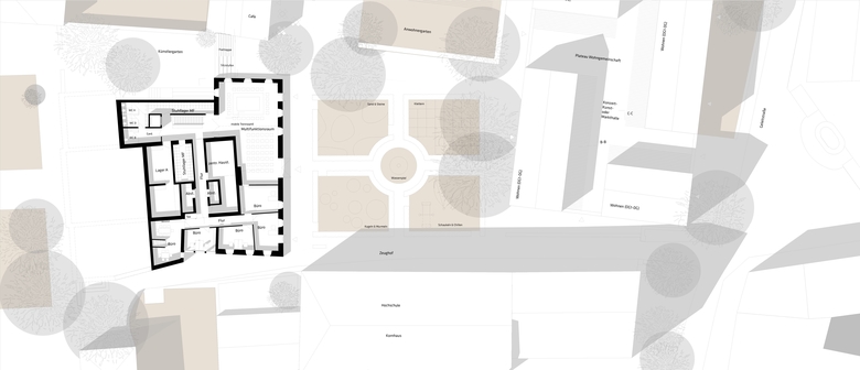
Die Haupterschließung des Hauses erfolgt vom Theaterplatz. Die innere Organisation des Hauses ist sehr plausibel und erschließt sich leicht. Dem bestehenden Ausstellungsraum wird durch die neue gläserne Aussenwand mit Arkade eine zweite Raumschicht als Ausstellungsort hinzugefügt. Es entsteht eine spannende Wechselbeziehung zwischen dem eher introvertierten, bestehenden Ausstellungsaal mit Oberlicht einerseits und dem lichtdurchfluteten, umfassenden Raum mit Blick in die Stadt andererseits. Die Büroräume liegen im unteren Geschoss an der Südseite, der Multifunktionsraum in guter Lage ebenfalls im Untergeschoss zum Platz hin gewendet. Die Verbindung der Ausstellungsebene mit dem Multifunktionsraum wird über eine größere Treppe an der Nordseite des Ausstellungsraumes und ein Foyer im unteren Geschoss angemessen geleistet.
Insgesamt respektiert die Arbeit in hohem Masse den Bestand. Die wenigen Eingriffe, wie die Öffnung an der Stirnseite des Ausstellungsraumes oder neue Unterkellerung im südlichen Teil sind nachvollziehbar. Zugleich werden die Bestandsfragmente mit einer Art Superzeichen, interpretierbar als Kolonnade oder Tempelmotiv, zu einer bestechenden architektonischen Ganzheit zusammengeführt, die sich – wie gesagt – zu einem Solitär als „link“ zwischen den großen Platzräumen fügen. Diese gestalterische Operation beschränkt sich auf ein Motiv und ist wiederum sehr einfach.
Es sollte angemerkt werden, dass die sehr statuarische und pathosstiftende Galerie der Weimarer Reichskanzler, eine Art Weimarer Walhalla, sowohl in räumlicher wie personaler Hinsicht zu überdenken wäre und einem freieren Konzept weichen sollte, also Betonung der Modernität, kein Traditionalismus. Zudem ist festzustellen, dass von der anderen, der Theaterplatzseite, also einer durchaus wichtigen Seite, die Neubestimmung des Ortes als moderner Ort des Demokratiediskurses architektonisch kaum markiert wird.“ Protokoll Preisgericht
- Año
- 2017
- Wettbewerb
- 2. Preis





