IBM Headquarter

Vul­kan­stras­se 106, Zürich, Switzerland

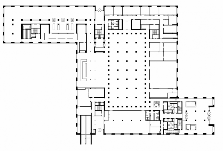
Die IBM als eines der ersten und führenden globalen Unternehmen der Zukunftstechnologien steht für Kreativität und Solidität zugleich. Die Gestaltung des Hauptquartiers für die IBM in Zürich Altstetten soll Innovation und Risikobereitschaft und zugleich Tradition und Verantwortungsbewusstsein architektonisch repräsentieren. Im Sinne eines „Dualismus" von Solidität und Transparenz wird die Fassade aus Naturstein von großformatigen, rahmenlosen Fensterflächen durchbrochen. Ihre Gestaltung im Detail ist radikal vereinfacht, so dass das Gebäude mal als Haus, mal eher als Skulptur erscheint. Ein interner, zentraler Platz, die „Agora", führt die Anlage zusammen und dient als Ort des Austausches und der Begegnung.

Fotografien: Walter Mair, René Dürr

Dibujo © Max Dudler
Año
2005
Project Status
Construido
Cliente
Allreal Vulkan AG
Bauzeit
2003–2005
Bauvolumen
BGF 40.000 m²
Verfahren
Studienauftrag 2000, 1. Preis

Otros proyectos de MAX DUDLER 

Stadtbibliothek
Heidenheim, Alemania
Restaurant Sale e Tabacchi
Berlin, Alemania
Bundesministerium
Berlin, Alemania
Werdauer Weg
Berlin, Alemania
Hotel Quartier 65
Mainz, Alemania