Rathaus Schorndorf

Schorndorf, Alemania

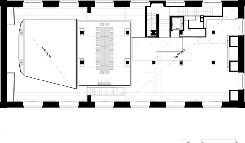
Das 1726-30 erbaute Rathaus dominiert als Solitär den Marktplatz und ist das Wahrzeichen der Stadt Schorndorf. In einer ersten Umbauphase wurden zunächst die Obergeschosse des Hauses energetisch und denkmalgerecht saniert. In der zweiten Bauphase folgten die Neugestaltung der öffentlichen Bereich im Untergeschoss sowie der Fassade. Hauptidee der Gestaltung war es, den historischen Raum möglichst sichtbar zu machen. Transparenz in allen Bereichen steht aber auch für ein bürgernahes Demokratieverständnis und erinnert an die ursprüngliche Funktion des Untergeschosses als Marktplatz.

Vom Foyer mit seinen historischen Holzsäulen führt eine Treppe hinauf in den Trausaal. Dessen schwebender Einbau und die darunterliegende Front zum Plenarsaal sind aus Glas, sodass der Raum als Ganzes erfassbar bleibt. Den Plenarsaal prägen das geschwungene Deckensegel und die auf Sichtkontakt optimierte Sitzanordnung, die eine konstruktive Kommunikationsatmosphäre fördert.

Bauherr
Stadt Schorndorf

Architekten
Ippolito Fleitz Group – Identity Architects

Projektleiter
Christian Kirschenmann
Roger Gasperlin

Fotografie
Zooey Braun

Año
2012

Otros proyectos de Ippolito Fleitz Group – Identity Architects 

Dalian Huanan MixC One Mall
Dalian, China
Yancheng – Urban Mountain
Yancheng, China
Hofhaus
Taschkent, Uzbekistan
Yancheng Vertical Forest
Yancheng, China
CR Land: Wuxi MixC Mall
Wuxi, China