Kita in Nürnberg

Nürnberg, Alemania
Ansicht zum Forum
Foto © Werner Huthmacher Photography

Die neue Kindertagesstätte bietet helle, lichtdurchflutete Räume für 2 Gruppen mit jeweils 50 Kindern, die sich auf 2 Ebenen aufteilen. Eine kleine Arkade zum zentralen „Forum“ bildet einen wettergeschützten Eingangsbereich und öffnet sich zu einem kompakten Windfang. Von hier aus bindet eine zweiläufige Treppe das Obergeschoss an. Unmittelbar der Eingangstür gegenüberliegend befindet sich der Eingang zu den Gruppenräumen im Erdgeschoss.

Eine kompakte zweigeschossige Halle bildet den räumlichen Mittelpunkt des Gebäudes. Über ein Oberlicht dringt Tageslicht und frische Luft in die Mitte der beiden Ebenen. Der Mehrzweckraum, sowie die Gruppenhaupträume orientieren sich nach Süden zum Garten und die Gruppennebenräume nach Westen. Dienende Räume, wie die Personalräume, die Küche und das WC orientieren sich nach Norden. Zur Gartenseite hin sichert eine Außentreppe, die auch die Funktion der Fluchttreppe übernimmt, die schnelle Verbindung aus dem Obergeschoss in den großzügigen Garten der neuen KiTa.

Die Kindertagesstätte entsteht als Massivbau mit einer Lochfassade und tragenden Flurwänden. Ein 49 cm starkes Mauerwerk aus Poroton-Steinen bildet die tragenden Außenwände. Ein Kammputz in silbergrau bildet die Wandoberflächen. Die tragenden Innenwände werden aus 24cm und die nichttragenden Innenwände aus 17,5cm starken Porotonsteinen gemauert und mit einem Innenputz versehen. Ein weiterer Vorteil der massiven Bauweise ist vor allem die Speicherfähigkeit der Wände, die insbesondere beim sommerlichen Wärmeschutz eine große Rolle bei der Kühlung des Gebäudes spielt. Im Erdgeschoss ist der eingeschnittenen Eingangsbereiche mit einer Holzverkleidung aus Lärchenholzlamellen akzentuiert. Die Fenster werden in Holz-Alu-Konstruktion gefertigt. Ein außenliegender Sonnenschutz schützt die Unterrichträume vor sommerlicher Überhitzung.

Im Gebäude dominieren die natürlichen Farben der eingesetzten Materialien, helle Putzflächen, Holz und farbiger Linoleum, sowie einzelne farbige Akzente.

Gartenfassade
Foto © Werner Huthmacher Photography
Gartenfassade
Foto © Werner Huthmacher Photography
Flur EG
Foto © Werner Huthmacher Photography
Flur OG
Foto © Werner Huthmacher Photography
Modell
Foto © huber staudt architekten bda
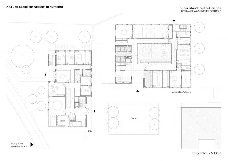
Grundriss EG
Dibujo © huber staudt architekten bda
Grundriss OG
Dibujo © huber staudt architekten bda
Schnitte_Ansichten
Dibujo © huber staudt architekten bda
Año
2021
Project Status
Construido
Auftraggeber
WBG KOMMUNAL GmbH
Grundstück
ca. 1,2 ha
Architekt
huber staudt architekten bda Projekt-Team: Andrii Klymenko, Christian Huber, Joachim Staudt, José Carlos Castro
Landschaftsarchitekt
LA.BAR Landschaftsarchitekten bdla

Otros proyectos de huber staudt architekten bda 

Neubau Sportforum am Schlaatz
Potsdam, Alemania
ECOMAT Center for Eco-efficient Materials and Technologies
Bremen, Alemania
Freie Universität Berlin – Klinik für Pferde
Berlin, Alemania
Schule für Kinder mit Autismus
Nürnberg, Alemania
Evangelisches Waldkrankenhaus Spandau
Berlin, Alemania