Feuerwehr Flims
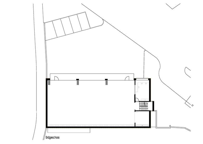
Die gemeindeeigene Parzelle für das projektierte Feuerwehrdepot befindet sich unterhalb der Tankstelle am östlichen Dorfausgang von Flims. Die Parzelle erschliesst sich an die neue Via Tull sowie direkt an die Kantonsstrasse. Der leicht nach Osten abfallende Hang sowie die zweifache Erschliessung der Dreiecksparzelle bestimmten die Struktur des zweistöckigen Gebäudes. Die Ausrichtung der Hauptfahrzeughalle direkt auf die Kantonsstasse ermöglicht ein optimal schnelles Ausrücken der Feuerwehrfahrzeuge.
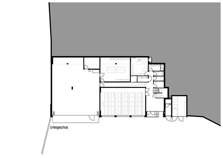
Das Gebäude ist als Feuerwehrdepot sowie auch als Ausbildungszentrum für die Feuerwehr, Samariter und die Rettungskolonne konzipiert. Dies vor allem mit Einbezug einer intensiveren Schulung für die spezielle Brandbekämpfung im Umfahrungstunnel ab 2007. Die Parkplätze sind auf der Untergeschossebene in Verbindung zum Schulungs- und Retablierungsraum angeordnet.
Die Konzeption des zweistöckigen Gebäudes mit Fahrzeughallen auf zwei Ebenen, die grosse Nutzlasten aufweisen, bestimmen weitgehend die Primärkonstruktion. Die Tragkonstruktion in Ortbeton und Kalksandsteinwänden eignet sich auch als fertige Oberfläche für Wände und Decken im Innern. Die Dachkonstruktion besteht aus Brettschichtholzträgern mit eingelegten Koppelpfetten. Die Dacheindeckung besteht aus Sandwichelementen mit thermischer Isolation und Trapezblech. Die gesamte Aussenhülle in Holz und die Dachflächen sind einheitlich im Farbton anthrazit gehalten. Die rote Farbe der Torfronten schafft Identifikation mit der Feuerwehr. Der dunkle Farbton des gesamten Volumens bewirkt eine optische Reduktion der tatsächlich vorhandenen Baumasse. Mit der Stellung des Gebäudes in Talrichtung wurde dem Fluss der Landschaft Rechnung getragen. Die Lage der Bauten am östlichen Dorfeingang direkt an der Hauptstrasse sind sensibel, stehen solche Gebäude doch als Visitenkarte für die Baukultur einer Gemeinde. Die Botschaft der Architekten ist klar: es soll ein bescheidenes Bauwerk sein, dessen Funktionalität von aussen spürbar ist und dessen Architektur dem Zeitgeist entspricht.
- Año
- 2008



