Umbau Wohnhaus Auf der Egg, Zürich-Wollishofen

Foto © Roger Frei

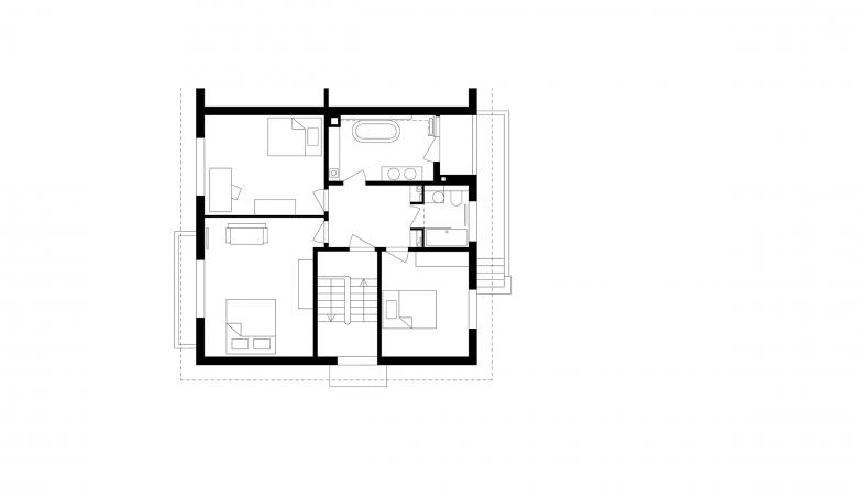
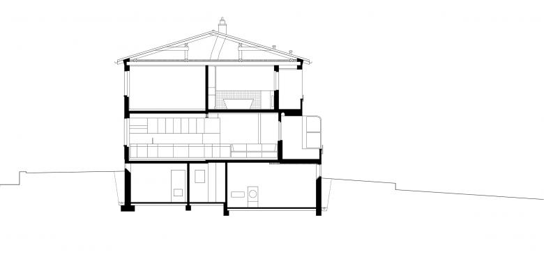
Haus und Garten sind Bestandteile des Ensembles «Auf der Egg» und als Schutzobjekte kommunaler Bedeutung inventarisiert. Rund um die vom Landschaftsarchitekten Gustav Amman geplante Parkanlage bilden Kirche, Pfarrhaus und Reihenhauszeile (Architekten Henauer und Witschi, 1938) eine weitgehend intakte Einheit mit gemässigt-modernem Ausdruck. Der bisher als Zweifamilienhaus genutzte Kopfbau der Wohnzeile weist aufgrund seiner Lage eine besondere Prägnanz auf. Die Umnutzung als Einfamilienhaus erfolgt unter Erhaltung der schlichten Aussenerscheinung, womit der einheitlichen Architektur der Gesamtanlage Rechnung getragen wird. Im Inneren bleibt auf beiden Geschossen die ursprüngliche Raum- und Tragstruktur massgebend. Im Erdgeschoss werden allerdings drei sorgfältig proportionierte Wanddurchbrüche vorgenommen. Sie generieren neue, grosszügige Bezüge innerhalb der vorgefundenen Zimmerabfolge. Zusätzlich zur Schaffung dieses Raumgefühls im Interieur erzeugt der Eingriff einen intensiven Bezug zur Landschaft. Die einmalige Lage auf der flachen Hügelkuppe wird durch den neu durchgehenden Wohn- & Essbereich zur Geltung gebracht. Von der Kaffeeecke kann man den Blick über den See auf einer Seite, den Uetliberg auf der anderen Seite schweifen lassen, und dabei die wechselnden Lichtverhältnisse von der Morgendämmerung bis zum Sonnenuntergang erleben.

Foto © Roger Frei
Foto © Roger Frei
Foto © Roger Frei
Foto © Roger Frei
Foto © Roger Frei
Foto © Roger Frei
Foto © Roger Frei
Año
2022
Project Status
Construido
Bauingenieur
Schwarber Staub Bauingenieure KIG, Zürich
Bauphysik & Akustik
Bakus Bauphysik & Akustik GmbH, Zürich

Otros proyectos de GXM Architekten 

Le Ticle Zentrumsüberbauung
Delémont, Switzerland
Multifunktionale Überbauung Gare des Eaux-Vives
Genf, Switzerland
Familien- und Generationenhaus
Zürich, Switzerland
Dauerausstellung MICR
Genf, Switzerland
Wohnwerkstatt
Dübendorf, Switzerland