In Rekordzeit zum Klinik-Hochhaus
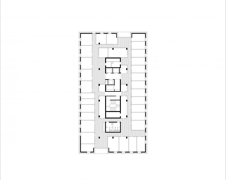
Hochhaus als Wahrzeichen für Gesundheitscampus. Im Rahmen des geplanten Neubaus des Flugfeld-Klinikums sollte ein Hochhaus für verschiedene Nutzungen - unter anderem für eine Schule für Gesundheits- und Pflegeberufe, Mitarbeiterwohnungen und die zentrale Verwaltung des Klinikverbundes Südwest - mit Parkhaus entstehen. Der neue 13-geschossige Turm setzt ein markantes Zeichen am Eingang des neuen Campus. Sein Tragwerk ist eine einfache Stahlbetonschale, die größtenteils aus recyceltem Beton besteht. Große Fensteröffnungen verleihen dem Gebäude eine gehobene Anmutung und sorgen in Verbindung mit dem inneren Kern für eine natürliche Belichtung der Gemeinschaftsbereiche auf allen Etagen. Mehrstöckige Räume an strategisch günstigen Stellen im Gebäude bieten Treffpunkte, die Begegnung und Austausch fördern sollen. Der Turm und das Parkhaus bilden zusammen ein harmonisches Ganzes in Design und Architektur. Das Parkhaus, dessen Obergeschosse von der Bauflucht zurückgesetzt sind, vermittelt erfolgreich mit der angrenzenden Eckbebauung, während seine 16 Halbgeschosse, die durch einen Erschließungskern verbunden sind, knapp 600 Stellplätze bieten.
Nachhaltige Bauweise und Außenanlagen. Sowohl der zentrale Erschließungskern als auch die Fassade des Turms sind tragend. Die Lochfensterfassade und das einheitliche Raster bieten eine flexible Nutzung der Geschossflächen und die Möglichkeit, die Innenräume mit relativ geringem Aufwand umzugestalten. Die helle Klinkerfassade, die das Erscheinungsbild des Kreiskrankenhauses ergänzen soll, wird horizontal durch vorgefertigte Betonstreifen gegliedert, die um das Gebäude herum verlaufen. Durch die Verwendung von Lochfensterelementen, die sich über mehrere Geschosse erstrecken, entstehen mehrere getrennte Funktionszonen, die von außen kaum wahrnehmbar sind. Die wechselnden Breiten und Rhythmen der Fensteröffnungen lenken die Aufmerksamkeit auf die größeren Glaselemente, ebenso wie die Bepflanzung den Terrassenbereich vor dem Gebäude aufwertet. Der Außenraum ist mit großformatigen Betonplatten, Grüninseln und bodennahen Wasserbrunnen sowie mit nachhaltigen Pflastersteinen aus 40 % Recyclingbeton ausgestattet. Auch die Pflasterbeläge können aus recycelten Materialien hergestellt werden. Die Pflastersteine lassen sich bei Abnutzung oder Beschädigung leicht austauschen und können am Ende ihrer Nutzungsdauer entfernt und recycelt werden.
Kurzbeschreibung: Im Rahmen des geplanten Neubaus des Flugfeld-Krankenhauses sollte ein Hochhaus für verschiedene soziale, pädagogische und administrative Nutzungen sowie ein Parkhaus entstehen. Die Realisierung: Ein 13-geschossiger Turm setzt ein markantes Zeichen am Eingang des neuen Campus, dessen Tragwerk eine einfache Stahlbetonschale aus weitgehend recyceltem Beton ist. Große Fensteröffnungen verleihen dem Gebäude eine gehobene Anmutung und sorgen in Verbindung mit dem inneren Kern für eine natürliche Belichtung der Gemeinschaftsbereiche. Merkmale: Der zentrale Erschließungskern und die Fassade sind beide tragend, während die Lochfensterfassade und das einheitliche Rastermuster flexible Grundrisse und kostengünstige Umbauten ermöglichen. Passend zum Kreiskrankenhaus ist der Turm mit einer hellen Klinkerfassade versehen, die durch umlaufende Betonfertigteilbänder horizontal gegliedert ist. Die wechselnden Breiten und Rhythmen der Fensteröffnungen lenken die Aufmerksamkeit auf die größeren Glasflächen, während die Pflastersteine im Außenbereich, die zu 40 % aus recyceltem Beton bestehen, die Nachhaltigkeit des Entwurfs unterstreichen.
- Año
- 2024
- Cliente
- Kreisklinikum Böblingen






