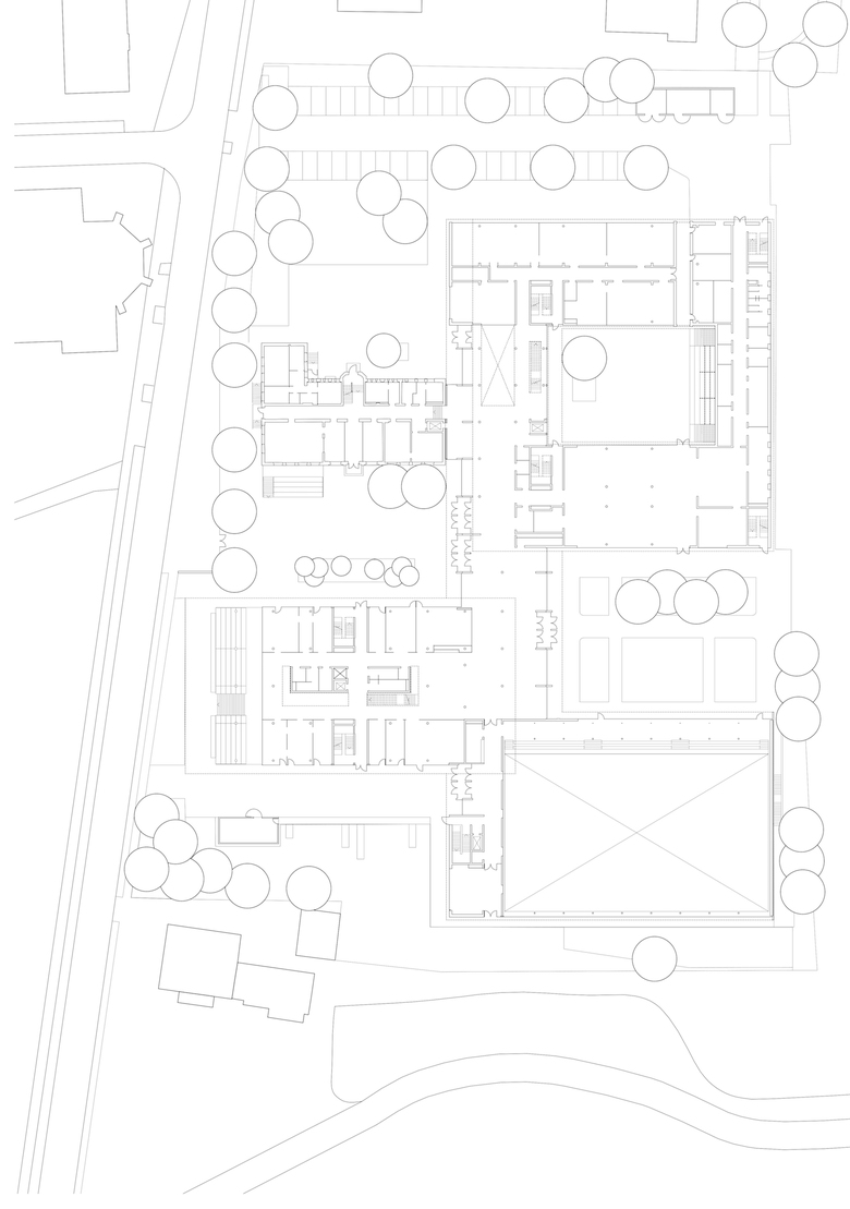
Schulzentrum Obermenzing
Die bestehenden Schulgebäude aus unterschiedlichen Entstehungszeiten wurden bis auf den aus dem Jahr 1912 stammenden Hauptbau gegenüber der Kirche Leiden Christi abgerissen und durch Neubauten ersetzt, die neben der Grund- und der Realschule eine Dreifachsporthalle umfassen. Verbindendes Element der neuen Schulanlage ist eine erdgeschossige Erschließungsgshalle, an die zu beiden Seiten sowohl die Schulhäuser, die Mittagsverpflegung als auch die Sporthalle anschließen. Dadurch entstehen neben einem großzügigen Eingangshof geschützte und zum Teil über zwei Ebenen reichende Pausenhöfe.
Auftraggeber
Landeshauptstadt München
vertr. durch Baureferat Hochbau
Fertigstellung
2017 1. BA, 2019 2. BA
Bruttogeschossfläche
19.632 m2
Bruttorauminhalt
86.754 m3
Leistungsbild
Lph. 1 – 9 HOAI
- Año
- 2019







