Kreissparkasse Böblingen
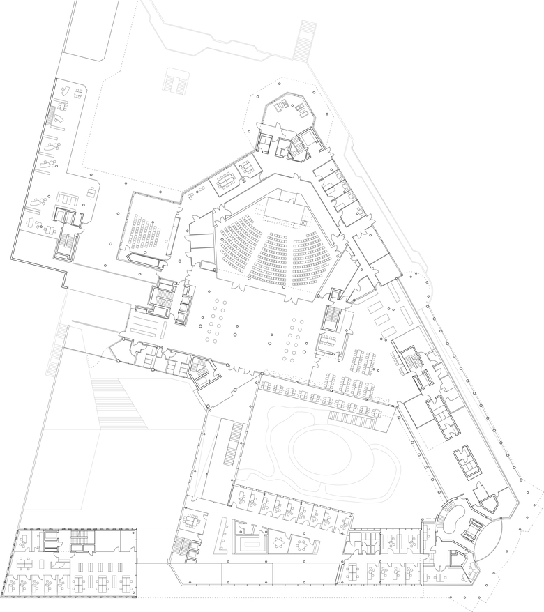
Die Kreissparkasse ordnet ihr großflächiges Areal mit Bebauung aus den 70er- bis 90er-Jahren neu. Zuerst entstehen die neuen Kundenbereiche an der Bahnhofsstraße, im zweiten Bauabschnitt werden die Bestandsgebäude einschließlich Hochhaus und Veranstaltungsforum neu strukturiert. Der Erweiterungsbau führt die Blockrandbebauung fort; seine gegliederte und profilierte Fassade steht im Kontrast zur glatten Haut des Hochhauses. Eine großzügige verglaste Halle bildet den Übergang zum Bestand. Die Verknüpfung mit der Stadt wird durch eine neu gestaltete öffentliche Durchwegung gestärkt.
Auftraggeber
Kreissparkasse Böblingen
Architekten
Auer Weber, Stuttgart
Christof Teige (Assoziierter)
Dominik Schäfer (Projektleitung)
Henrike Schlinke, Tim Volz,
Cornelia Semar, Susanne Lindenthal,
Carolin Possner
BGF
37.300 m2
BRI
142.700 m3
NF
21.420 m2
Leistungsbild
Lph 1 – 9 HOAI
Fachplaner
Tragwerksplanung: MVD Ingenieurgesellschaft für Bauwesen, Sindelfingen
Technische Ausrüstung: Planungsgruppe M+M AG, Böblingen
Elektroplanung: Ingenieurgesellschaft für Haustechnik Wetzstein GmbH, Herrenberg
Energieberatung/Fassadenplanung: DS-Plan, Stuttgart
Brandschutz: pgk planungsgruppe kuhn, Sindelfingen
Projektsteuerung: Drees & Sommer Stuttgart GmbH, Stuttgart
Bauleitung: Auer Weber, Stuttgart mit guggenberger+ott architekten gmbh, Leinfelden-Echterdingen
Fotos
Roland Halbe
- Año
- 2015











