John F. Kennedy Haus am Hauptbahnhof, Berlin

Berlin, Alemania
Foto © Roland Halbe

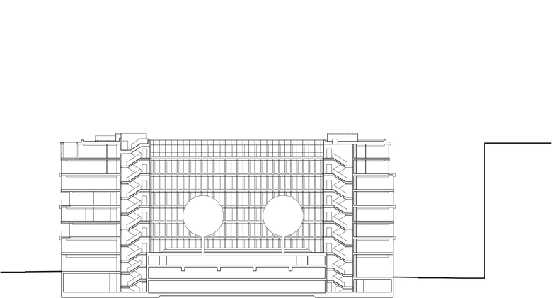
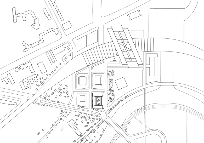
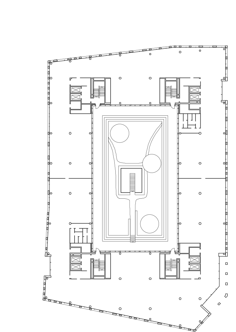
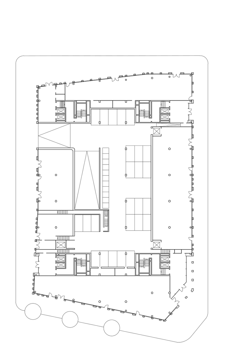
Das Bürogebäude in unmittelbarer Nähe zu Hauptbahnhof und Regierungsviertel bildet einen der vier Stadtbausteine des Lehrter Stadtquartiers. Fassadenflächen aus hellem Naturstein im Wechsel mit dahinter zurücktretenden Glasflächen definieren die äußere Schale, während sich die Gebäudeinnenseiten mit vollflächigen Glasfassaden zum begrünten Innenhof öffnen. Um die Höhe des Gebäudes zu gliedern, werden über die Fensterformate formal je zwei Geschosse zusammengefasst, die mittels leichter Geschossversprünge in Dialog mit den anderen Stadtbausteinen mit gleichen Gestaltungsregeln treten.

Auftraggeber
CA Immo Deutschland GmbH, Berlin

Bruttogeschossfläche
23.060 m2 /

Brutto-Rauminhalt
102.540 m3

Leistungsbild
Lph. 2 – 5, + künstl. Oberleitung (HOAI)

Gesamtkosten
KG 200 – 700 brutto, 47 Mio. Euro

Zertifizierung
DGNB „Platin”, 2016

Foto © Roland Halbe
Foto © Roland Halbe
Foto © Roland Halbe
Foto © Roland Halbe
Año
2015
Project Status
Construido

Otros proyectos de Auer Weber 

Bildungscampus III Heilbronn 1. BA
Heilbronn, Alemania
Kurfürsten Carré
Heidelberg, Alemania
Empfangsgebäude und Bahnhofsvorplatz – Hauptbahnhof München
München, Alemania
Allianz Deutschland Campus
Unterföhring, Alemania
Grund- und Vorschule mit Sporteinrichtungen
Esch sur Alzette, Luxemburgo