Europäische Schule Straßburg
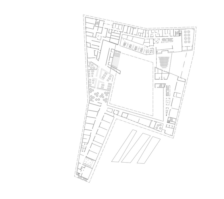
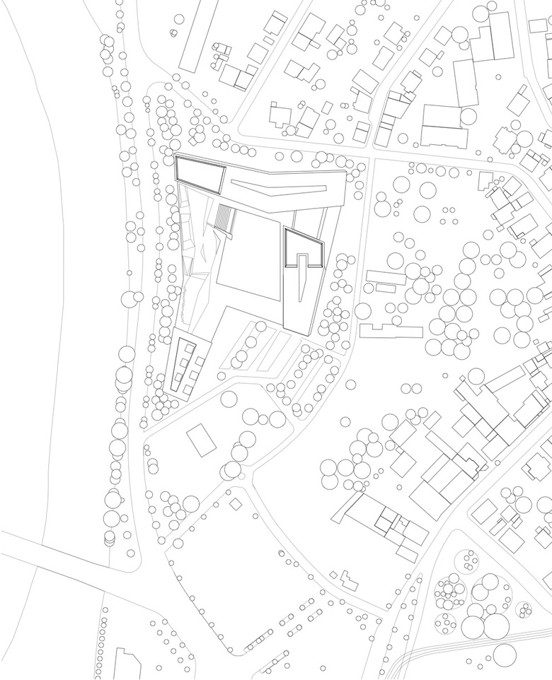
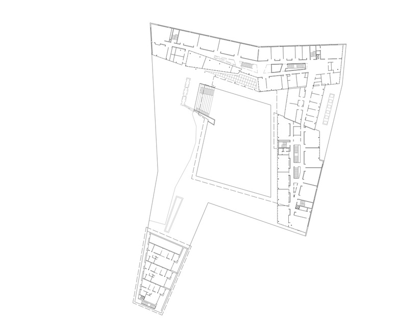
Das Schulgebäude liegt auf einem Grundstück mit dichtem Baumbestand. Die drei klar ablesbaren Baukörper des Kindergartens, der Grundschule und des Gymnasiums gruppieren sich um einen zentralen Innenhof. Im Erdgeschoss befinden sich die gemeinsam genutzten Bereiche, wie Bibliothek, Multifunktionssaal und Mensa. Trotz der Differenzierung der Funktionseinheiten fasst eine durchgängige, plastisch geformte Fassade die Baukörper zu einem gemeinsamen Ganzen zusammen, wodurch das Leitbild des neuen Typus der „Europäische Schule“ klar hervortritt: Gemeinsamkeiten leben und kultivieren.
Auftraggeber
Stadt Straßburg
Bruttogeschossfläche
13.495 m2
Bruttorauminhalt
63.000 m3
Leistungsbild
Generalplanung
Mission de base MOP complète,
entspr. Lph 1 – 9 HOAI
Partnerbüro
drlw architectes, Strasbourg
- Año
- 2015
- Project Status
- Construido








