HHF Schulcampus Hanhoopsfeld
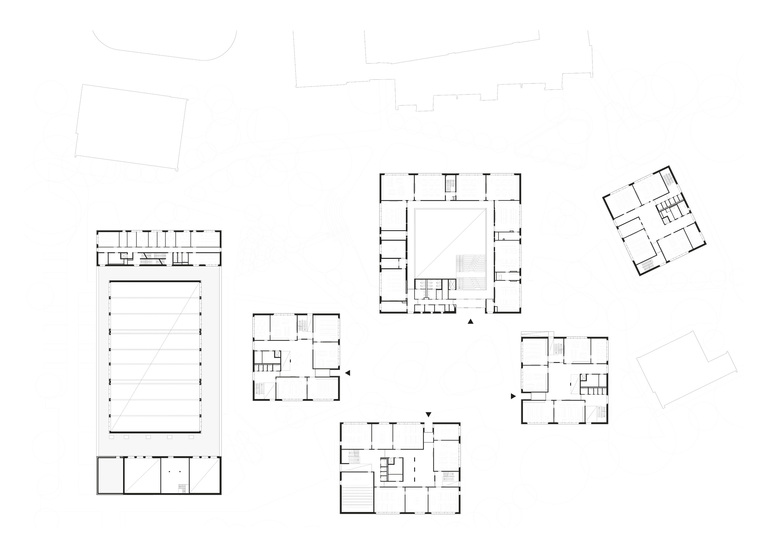
Zwei Schulen, eine Typologie, unendliche Möglichkeiten. Für die Lessing-Stadtteilschule und das Alexander-von-Humboldt-Gymnasium konzipierten AllesWirdGut und DnD Landschaftsplanung eine weitläufige Parklandschaft mit freistehenden, wohlproportionierten Solitärgebäuden. Die zueinander versetzten Bauten sind in ihrer Höhe dezent gestaffelt und fügen sich so der Dynamik des markanten Geländesprungs. Das gemeinsam genutzte Mehrzweckgebäude – Schnittstelle und Zentrum des Campus – liegt auf direkter Blickachse mit den beiden Haupteingängen und bildet einen allseits sichtbaren städtebaulichen Bezugspunkt. Allesamt sind die kompakten Einheiten von geradliniger Struktur und vermitteln eine zeitgemäße Architektursprache, die sich etwa über die einheitlich mit Klinker verkleideten Fassaden artikuliert. Im Inneren der Unterrichtsgebäude zirkulieren die Klassenräume wie die Flügel eines Windrades um ein zentrales Atrium. Offene Bereiche und Nischen bieten Möglichkeit für eine Vielzahl an Unterrichts- und Lernformen. Die Außenräume mit Biotop, Freilufttheater und Anbauversuchsflächen bieten überdies individuelle und gemeinschaftliche Bereiche für alle. Ein homogener und zukunftsgewandter Campus, der sich nahtlos in das Bestandsensemble einfügt und Freiräume für individuelle Entwicklung schafft.
- Año
- 2019
- Cliente
- GMH | Gebäudemanagement Hamburg GmbH
- Equipo
- Statik: Ingenieurbüro Horn + Horn Rostock, Schumacher + Gerber Ingenieurbüro Hamburg, Elektroplanung: Arcus Planung + Beratung Cottbus, Bauleitung: Zietz GmbH Thedinghausen, Haustechnik KMG Ingenieurgesellschaft mbH Berlin, Fachraumplanung: Spinzig + Spinzig GbR Hamburg, Küchenplanung: Cooking Solutions GbR Hude, Bauphysik: D3-Architekten Hannover, BZE-Ökoplan Hamburg, Bauakustik: OSJ Ingenieure Hamburg, Brandschutz: BIB Concept Stelle, Ausschreibung: MRO Architekten Hamburg, Zietz GmbH Thedinghausen, Projektsteuerung: PMD Gesellschaft für Projektmanagement Düsseldorf
- Landschaftsplanung
- DnD Landschaftsplanung





















