BSE Berufsschule Embelgasse
Verwaltung transparent: Die Architektur der Berufsschule für Verwaltungsberufe von AllesWirdGut demonstriert Bürgernähe, Offenheit und Transparenz.
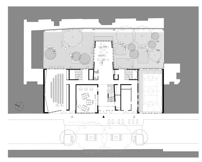
Das Einzige, was die neue Schule in der Embelgasse schließt, ist der Blockrand. Das Erdgeschoss gewährt dank großer Glasflächen Einblick in den Schulalltag und eröffnet dem Straßenraum den grünen Schulhof. Transparenz, Offenheit und Durchblick prägen den Außenauftritt der neuen Berufsschule. In den oberen Stockwerken werden wie in einem Setzkasten die schulischen Aktivitäten als Teil der Fassade und des Straßenraums präsentiert. So findet der enge Zusammenhang zwischen Öffentlichkeit und Verwaltung einen für beide Seiten bereichernden architektonischen Ausdruck. Über ein großzügiges, zweigeschossiges Foyer gelangen die SchülerInnen direkt zu den Klassenräumen, die im 2.Obergeschoss beginnen. Das Foyer holt Licht, Luft und Grün des Hofgartens ins Gebäude. Die Klassen sind zum Erschließungs- und Kommunikationsbereich transparent gehalten - ein Kontinuum Lern-, Arbeits- und Kommunikationsbereichen. Ergänzend zum grünen Innenhof nutzen die Schülerinnen die sonnige Hofterrasse im 2.Obergeschoss: Ein Freiraum liegt für die Schülerinnen jederzeit erreichbar in unmittelbarer Nähe.
Baubeginn
September 2013
Fertigstellung
Februar 2015
BGF
5.820m²
Projektleitung
Martin Brandt, Johannes Windbichler
Mitarbeit
Alexander Mayer, Christian Zotz, Johann Wittenberger, Isabel Espinoza Tratter
- Año
- 2015











