Moon Flower Hospital
The hospital is conceived as a general hospital for the many workers living in the nearby compound.
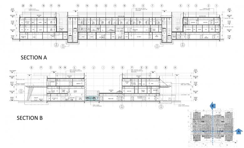
The hospital is designed on the existing skeleton of 4 dormitories for multi-storey workers. These have never been completed. The existing structure has compromised the best possible solutions and optimal circulation and future flexibility.
The hospital will accommodate 162 patients into 5 wards with 7 isolation rooms, 6 bariatric rooms, 7 ICU with bays rooms.
The milestone are: surgery department with 4 OPT and day surgery dedicated area, sterile supply unit for sterilization, outpatient department, imaging, rehabilitation, emergency, laboratories, pharmacy in addition to the required services departments.
The design is done by UPA Italia by Paolo Lettieri Architects and UPA, Urbanism Planning Architecture, (Abu Dhabi and Milano) with health consultancy service of Hospital Management (Munich). The project is developed in accordance with the health regulations of Abu Dhabi, the HAAD standards.
- Year
- 2018
- Project Status
- Design
- Client
- Moon Flower Real Estate Development
- Built up area
- 29.000 sqm
- UPA Role
- Concept, Schematic and Detail Design




