University of Chicago John W. Boyer Center in Paris

39-45 Rue des Grands Moulins, Paris, France
Photo © Fabrice Fouillet

Studio Gang, the international architecture and urban design firm led by Jeanne Gang, has completed its first project in France: the University of Chicago John W. Boyer Center in Paris. Serving as a European hub for scholarship and research
in Paris’s 13th arrondissement, the new academic center is designed to enliven the surrounding neighborhood and weave itself into the urban and intellectual fabric of the city.

The Center is part of a new development that also includes a mixed-use residential building designed by PARC Architectes. Situated on a corner site on Paris’s Left Bank, in a neighborhood regarded as a hub for research and higher education, the Center is the architectural centerpiece of the block.

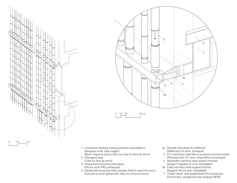
The building’s defining feature is a brise soleil façade composed of approximately 900 cylindrical batons. The stone batons function as a filtering screen whose porosity responds to the program within, densifying around private spaces for study and research and opening to reveal activity in public and event spaces. Each baton is enrobed in Lutetian limestone, a stone that underlies much of the Paris region and has been a common local building material since antiquity. Limestone links the building to the University’s main campus in Chicago, where it is also a prominent building material, while simultaneously rooting it to the history of Paris.

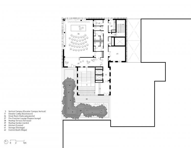
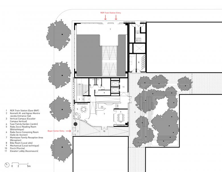
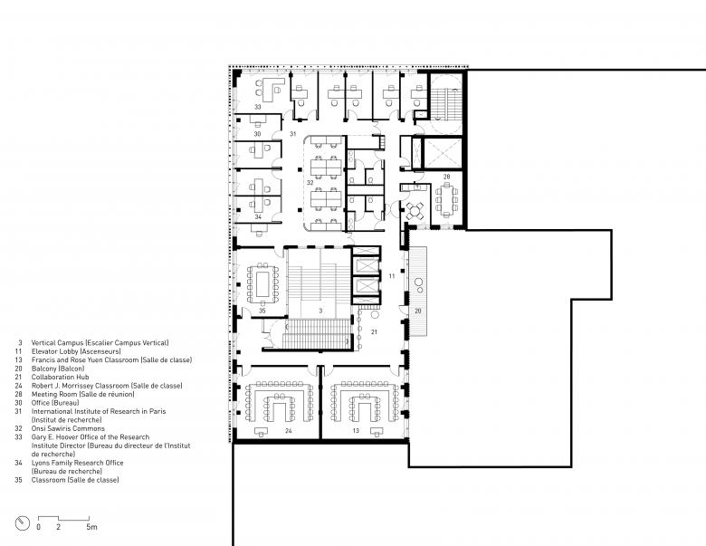
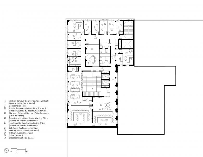
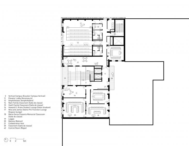
The 25,460 sf (2,365 sqm) building is designed as a vertical campus, with learning and research areas wrapping around a central atrium that connects spaces both physically and visually. Outdoor spaces—including a shared courtyard, a loggia, and a series of terraces—provide places for socializing, study, and rest as well as access to nature and a habitat for urban wildlife. Nine classrooms, including a laboratory teaching space, support academic activities, while a research institute provides a home base for visiting academics.

On the top floor, a double-height event space with an adjoining biodiverse rooftop garden supports the Center’s role as a forum for intellectual exchange by bringing an airy atmosphere and sweeping views of the city to conferences, cultural events, and social gatherings. An amphitheater can similarly be configured to accommodate lectures, conferences, or large classes.

Beyond its walls, the building promotes a lively exchange between Parisians and University students and faculty by connecting transit users to a regional train station directly below and activating the streetscape with a newly commissioned artwork by Tony Lewis.

In alignment with the environmental standards of the City of Paris, the design minimizes the building’s carbon footprint while optimizing its energy performance. The general massing of the block is shaped according to the path of the sun to optimize and bring in daylight. Increased air circulation and natural ventilation are facilitated by the building’s vertical design and abundant outdoor spaces, which include regionally specific plantings to cultivate biodiversity. Its hybrid mass timber structure and masonry façade use building materials that were sustainably harvested and sourced within the nearby region, such as from a quarry only 25 miles (40 km) from the site. With photovoltaic panels on the roof that generate clean energy on-site and reduce reliance on the energy grid, the building will also be connected to the district’s heating
and cooling services for improved efficiency.

Photo © Corentin Lespagnol
Photo © Fabrice Fouillet
Photo © Fabrice Fouillet
Photo © Fabrice Fouillet
Photo © Fabrice Fouillet
Photo © Corentin Lespagnol
Photo © Corentin Lespagnol
Photo © Fabrice Fouillet
Photo © Corentin Lespagnol
Photo © Fabrice Fouillet
Photo © Fabrice Fouillet
Photo © Fabrice Fouillet
Photo © Fabrice Fouillet
Photo © Fabrice Fouillet
Drawing © Studio Gang
Drawing © Studio Gang
Drawing © Studio Gang
Drawing © Studio Gang
Drawing © Studio Gang
Drawing © Studio Gang
Drawing © Studio Gang
Drawing © Studio Gang
Drawing © Studio Gang
Drawing © Studio Gang
Drawing © Studio Gang
Year
2024
Client
ICADE Promotion, The University of Chicago
Team
Jeanne Gang, Mark Schendel, Rodia Valladares, Julien Roy, Ana Flor, Arthur Liu, Thorsten Johann, Claude Labbe, Margaret Cavenagh, Paul Brechignac, Austin Edwards, Gabrielle Poirier, Alfred Klopper, Chris Bennett, Thanh Nguyen, Weiju Lai, Colleen Lyell, Lauren Eggert, Bryan Scheib, Alexia Cavazos, Anne- Virginie Sala, Luis Tejeda, Emily Licht
Design Architect
Studio Gang
Public Urban Developer
SEMAPA
Project Manager, MEP, Energy Performance Consultant, Cost Estimator
Artelia Group
Structural and Façade Consultant
Elioth by Egis Group
Landscape Architect
OLM Paysagistes
Sustainability Consultant
Egis Group
Acoustic Consultant
AVLS
Fire Security Consultant
CSD-FACES
Code and Life Safety Consultant
BTP Consultants
General Contractor
Spie Batignolles Outarex
Stone Contractor/Fabricator
Mineral Expertise
Wood Structure Contractor
Cuiller freres
Steel Structure Contractor
SMB

Other Projects by Studio Gang 

Arkansas Museum of Fine Arts
Little Rock, AR, USA
Taipei Pop Music Center
Taipei, China
SOS Children’s Villages Lavezzorio Community Center
Chicago, USA
California College of the Arts Campus Expansion
San Francisco, CA, USA
The St. Regis Chicago (Vista Tower)
Chicago, IL, USA