Xitang Naera Art Gallery
The Xitang East Area under construction is the eastward expansion of the old town of Xitang, a well preserved ancient canal town in the South Yangtze river region. The area includes nearly 100,000 m2 of pedestrian blocks, hotel, and cultural facilities. As the key point of this area, Naera Art Gallery locates at the southwest corner of the northern site, facing the river on the west and south sides.
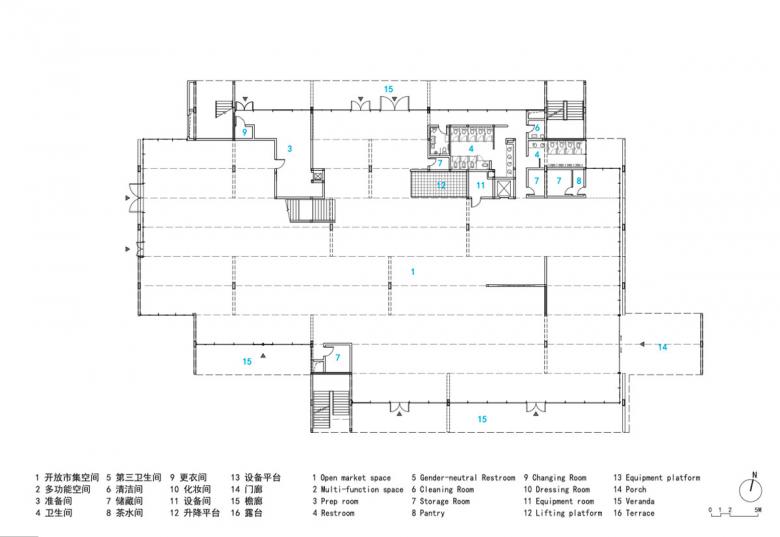
It is a mixture of market and art gallery with an open and flowing market space on the ground floor to accommodate the organic farm market, bookstore, teahouse and restaurant, and a multifunctional art gallery on the second floor to host exhibitions, forums and cocktail parties.
As per the obvious difference between the upper and lower floors, we used different structural space strategies to make this two-story building. On the ground floor, we extracted the structural form of Y-shaped columns from the geometry of the continuous gable wall, a typical form-type from traditional residential form-type, to support the upside-down triangular truss roof in 6 linear units. The space in the truss is used to install MEP equipment, and a continuous undulating indoor space is formed under these 6 linear roof units. The freely distributed Y-shaped columns ensure flowing space for the market, making flexible space for multiple usages. At the east and west ends, some of the Y-shaped columns are replaced by V-shaped gable walls with diagonal braces for seismic force and to establish a connection with the traditional gable walls with inverted slope.
The art gallery sits on top of the market. We tried to construct a single, relatively abstract form to house a column-free space. The connection with tradition is no longer limited to the figurative form, but draws inspiration from local lantern to pursue a more complete iconicity with its mutual-bearing structure.
The big roof is about 30 meters long and 20 meters wide. 92 short glulam beams cross and bear with each other to form a slightly arched shell to make an easier span and provide drainage slope. The weight of the roof is transferred to the surrounding wooden pillars through a ring of horizontal steel frame. The group of columns is composed of X-shaped oblique columns three-dimensionally composed by inter-inserted glulam poles. Providing continuous supports in both the vertical and horizontal dimensions, this column group solves the lateral forces from both the arch roof and the outward folded floor-to-ceiling curtain wall with half- glazed glass. This translucent woven structure, together with the adjustable membranes under the diamond-shaped skylight offer the art gallery soft natural light during daytime, while the warm light can be shed at night, making it a glamorous "super lantern" in the east district of Xitang.
- Year
- 2021







