Umbau Innenraum Haus S
Absam, Austria
Von dem, was war, ist
wenig geblieben .
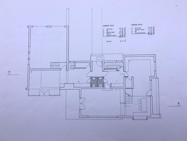
Da es darum ging, das räumlich
beengte Haus in Tirol, vertikal und horizontal in
zwei getrennte Wohnbereiche für Mutter und
Tochter zu gliedern, waren einige drastische
Maßnahmen nötig, um den gewünschten loftartigen
Charakter der beiden Wohnungen zu
erreichen. Äußerlich war es eine vom Bauherren auferlegte Prämisse, das Erscheinungsbild nicht wesentlich zu verändern.
Die gesamte rustikale Einrichtung und Ausstattung wurden entsorgt, Wände und
Treppen teilweise entfernt und einige Zwischendecken
ausgeschnitten, um auch vertikal
größtmögliche räumliche Weite zu erzielen;
eine Dachhälfte hob Petri gerade so weit an,
daß sich daraus ein Flächengewinn von etwa
90 m2 ergab, ohne im äußeren Erscheinungsbild
des Hauses merkliche Spuren zu hinterlassen.
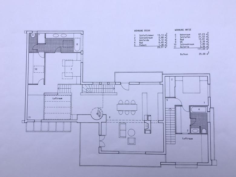
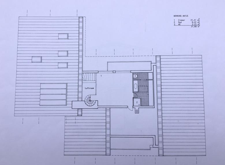
Im derart entkernten Haus konnte Petri
den Wohnungen ihren gegenwärtigen Sequenzenreichtum
verleihen: Geschoßübergreifende
Lufträume und ein offenes Grundrisskonzept
ermöglichen zahlreiche Blickbeziehungen; die
Atmosphäre wirkt trotz der Gleichzeitigkeit mehrerer
Raumbilder ruhig und gelassen. Diese
Ruhe hat auch damit zu tun, dass es im ganzen
Haus kaum Aufbewahrungsmöbel gibt, die die
Sicht auf das abstrakte Weiß der Wände behindern.
Der Blick balanciert zwischen Kontemplation
und Bewegung. Er folgt dem Auf und Ab der
Treppen, verweilt in den offenen Wohnräumen,
wo unterschiedliche Szenen privater Häuslichkeit
(Kochen, Essen, Ausruhen) parallel laufen,
ohne sich störend zu überlappen. Das Tageslicht
- vom Dach bis in den im Erdgeschoß
gelegenen Wintergarten geführt - sorgt auf
allen Wohnebenen für eine ausgleichende,
angenehme Helligkeit.
Ein kultivierter Mensch blickt niemals aus
dem Fenster (Adolf Laos) .
Diese introvertierte Dramaturgie der Sichtbeziehungen
macht den Ausblick entbehrlich.
Die Le Corbusier-Liege auf der oberen Galerie
ist zwar zum Fenster hin orientiert, dient aber
auch als ein Möbel für den internen Blick, ist
einerseits Beobachtungspunkt, andererseits
Schauobjekt, das an diesem exponierten Punkt
des Hauses die Vielfalt der möglichen Ansichten
suggestiv unterstreicht.
Hans Peter Petri hat in allen Geschoßebenen
und Wohnbereichen ein raffiniertes System der
Blick- und Funktionsbezüge entwickelt, das die
banale Abfolge von geschlossenen Zimmern,
wie er sie im ursprünglichen Grundriss vorfand,
souverän überspielt und dennoch intime Refugien
bereithält, die sich den Blicken entziehen.
Trotz seines sehr umfassenden Eingriffs hat
Petri nirgendwo mit zynischen oder verspielten
Kontrasten zwischen äußerer und innerer
Gestaltung des Hauses spekuliert. Der einfache
Materialcharakter (Holzböden, weiß verputzte
Wände) und die komplexe Logik der neuen
Räume zeigen , dass er ein Maß zwischen Vehemenz
und Zurückhaltung gefunden hat, das
das Haus in einer Spannung hält, ohne es zu
überreizen.
Gabriele Kaiser für Architektur Aktuell
- Architects
- Hans Peter Petri
- Year
- 1996
- Project Status
- Built
Related Projects
Magazine
-
-
-
-
Un despatx madrileny signa un visionari catalitzador urbà en West Palm Beach
Andrea Pala | 29.11.2018 -
L'arquitectura de Francis Keré en escena en el Museu ICO de Madrid
Andrea Pala | 28.10.2018



















