Löwen Hotel Montafon
Schruns, Austria
The Löwen Hotel Montafon is located in the picturesque mountain village of Schruns and was built in 1974. In 2013, the building was completely gutted and renovated. Ten years later, the hotel still meets the high requirements of the various guest groups in style and function. The great success of the hotel gave room for ideas and growth, which was realized in 2023. Today, the Löwen Hotel Montafon shines with a new extension, which is connected to the main building and is thus in no way inferior to its guests.
The original renovation design for the main building was based on a contemporary alpine-chic style, strongly influenced by traditional elements of the region. The new extension, on the other hand, harmonises stylistically with the main building, but with its modern lines it creates a beautiful, unique place for guests to relax and unwind, as well as work and celebrate.
The building envelope of the extension is a novel interpretation of traditional alpine houses with long wooden slats on the facade and a white building base typical of the surroundings. The interior is tastefully and comfortably furnished with elegant details and high-quality materials.
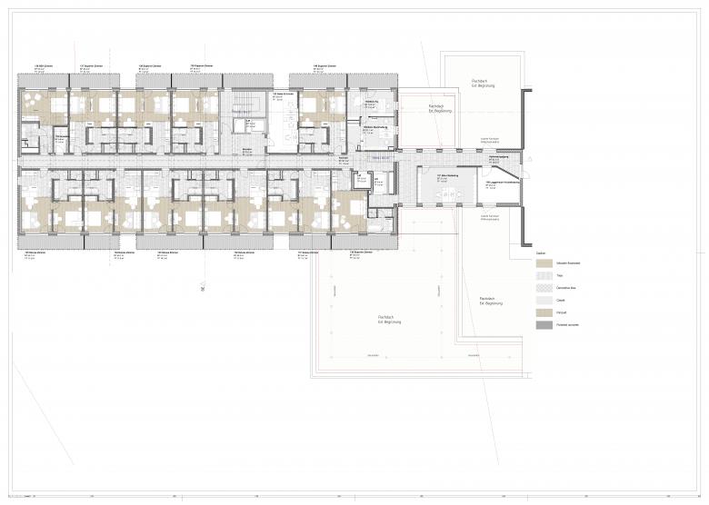
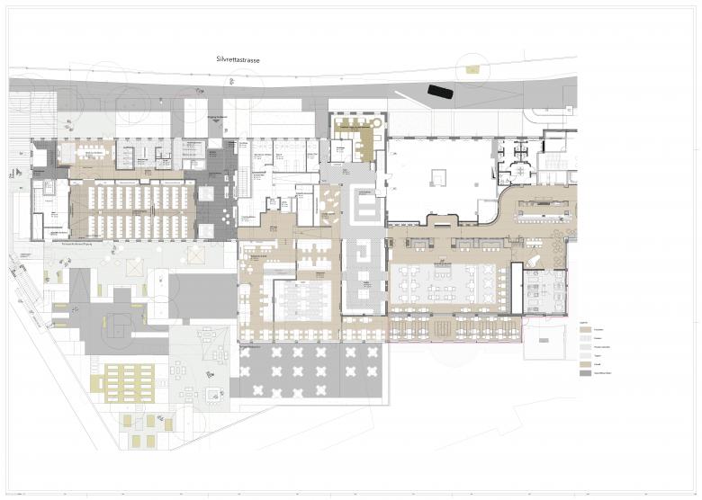
All in all, the new building is a true flexible hybrid with spacious conference rooms, multifunctional foyers, large family rooms and various restaurants. But it is also a nightclub that can be used during the day for readings and the such.
- Architects
- Monoplan AG
- Year
- 2023
- Client
- Hotel Löwen Schruns GmbH
- Team
- Kamila Kawecka, Anna Kaltwasser, Monika Blach, Philip Wohlfarth
Related Projects
Magazine
-
-
-
-
Un despatx madrileny signa un visionari catalitzador urbà en West Palm Beach
Andrea Pala | 29.11.2018 -
L'arquitectura de Francis Keré en escena en el Museu ICO de Madrid
Andrea Pala | 28.10.2018




















