National Square Automotive Electronics Research Centre
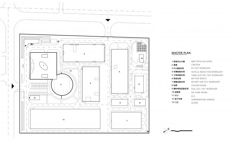
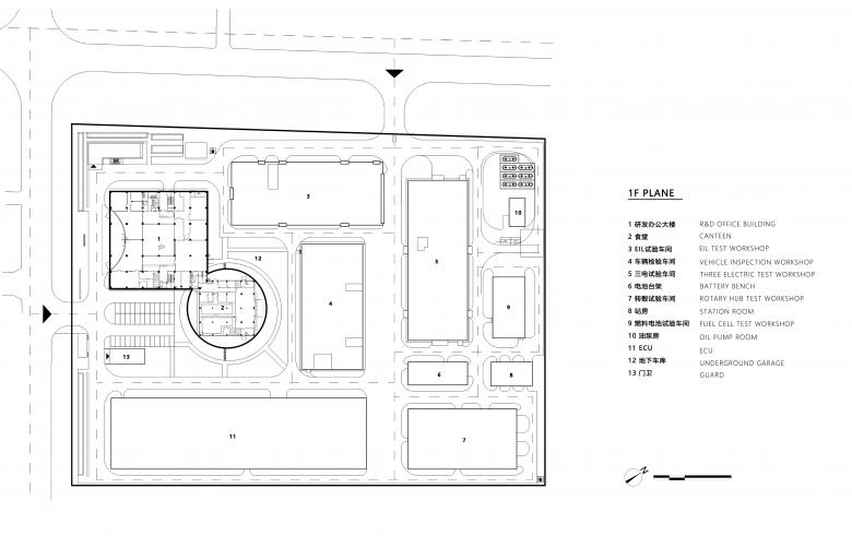
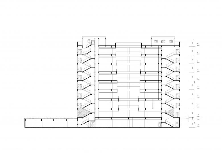
The headquarters of Suzhou National Square Automotive Electronics Co., Ltd. is located in the Xiangcheng Economic Development Zone of Suzhou City. As the office and R&D building of a manufacturing company, it is tasked with the mission of highlighting the individual identity of the company's characteristics and culture. The building consists of a cube and a cylinder, with a total of 9 floors (8 above ground and one underground). The total construction area is approximately 19,200m², and the overall height is about 40m. It is the landmark building of Suzhou Guofang Electronics Industrial Park.
The Guofang Automotive Electronics project is dedicated to developing, producing and selling automotive components, which is of great significance in accelerating the gathering of the automotive components industry in the region and creating an advanced equipment manufacturing industry cluster. The key to the overall idea of the design is how to reflect the cooperative, integrated nature of the area and the waves stirred up by the presence of this enterprise Based on the general context, the designer focused on expressing ideas regarding façade, spatial composition, geometric elements, more profound meaning, urban relationships, etc.
Low-rise factories and single-coloured facades mainly characterize the area where the building is located, lacking a modern industrial atmosphere. In order to highlight the high-tech corporate image of Suzhou National Square Automotive Electronics Co., Ltd., the office and R&D building have been created with the help of glass curtain walls and geometric elements to create a unique regional style with a three-dimensional and graphic sense. The spatial distribution of the office and R&D building is clever and uncrowded, creating aesthetic friction and collision with the surrounding buildings while forming a unified flavour with the factory. The designers are committed to creating a harmonious and distinctive urban space with a unique aesthetic.
In order to highlight the corporate culture and individual identity, both the external visual expression and the internal rhythm are of particular importance. Simple geometric features and deep cultural attributes are the first choices for a simple and evocative design solution. Therefore, the most crucial design factors are 'square' and 'circle'. The square shape's angularity indicates an aggressive attitude and a vibrant determination to attack. The natural harmony of the circle encapsulates the concept of communication and coordination. The simple expression of emotion is not the ultimate goal of the design. Still, the convergence of corporate culture, management wisdom and headquarters functions in the design is what sublimates the emotion of the building and gives substance to the simple geometric elements.
In terms of geometric typology, the square shape the attributes of preciseness, rigidity and legibility, while the circle is soft, transitional and natural. As a factory support office building, the square is located at the corner boundary of the site making the building more likely to enhance the sense of the urban plot interface. At the same time, the circle is more natural and flows as a leisure area inward towards the plot. In terms of function, the square volume is intended to accommodate office workers and R&D staff and display corporate culture, creating an office environment distinct from the workshop. In contrast, the circular volume is a supporting function for humanities and leisure within the factory.
The design uses a large number of glass curtain walls on the external surfaces of the building, with the public areas of the main building and the research and development areas distinguished by different materials on the facade, while the secondary building uses all-glass curtain walls to open up the public landscape areas and enhance the natural attributes of the building. It not only interprets the "harmony between square and circle" but also makes the whole building appears light and modern. This is a new office building -- simple, efficient and iconic.
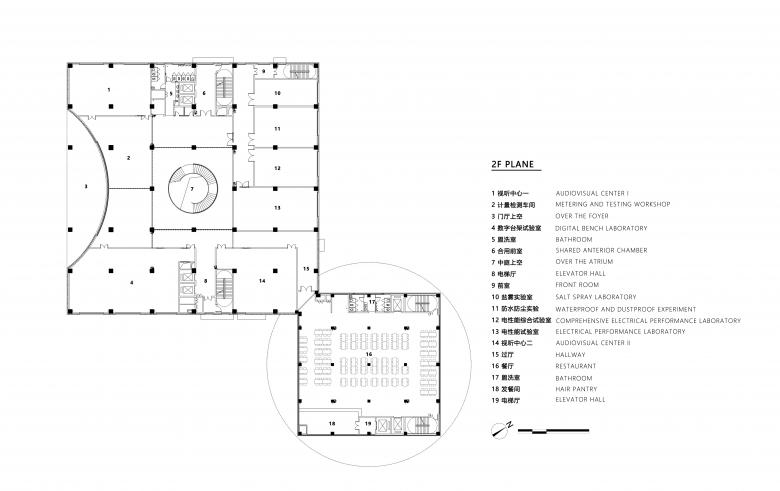
As for the creation of the building's internal spaces, the architects have excavated a circular platform in the middle of the cube from small to large to not only enhance the natural light intake inside the building and produce an interesting atrium that provides a high quality office environment, but also to create a series of social spaces within a flexible framework to encourage informal meetings, collaboration and ultimate innovation.
- Year
- 2022
- Project Status
- Built



























