Primary School West
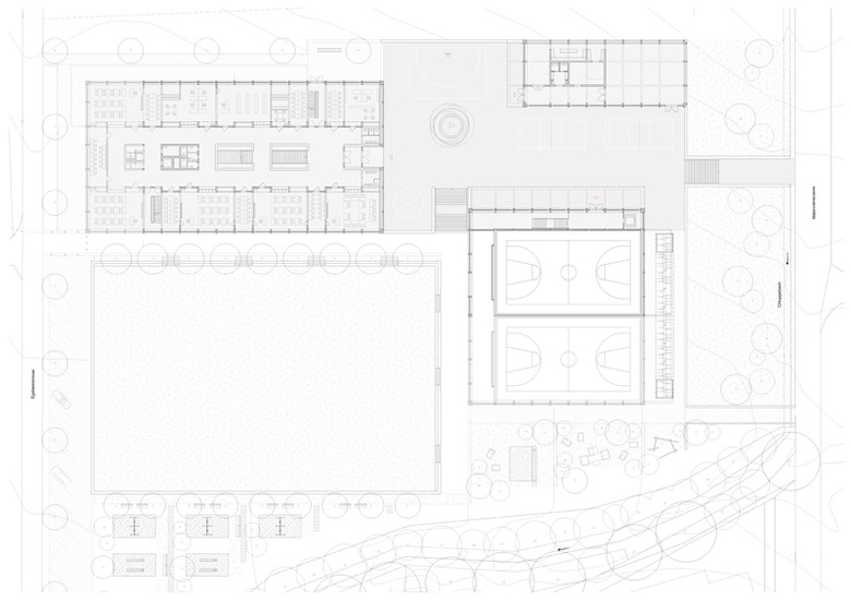
Das Grundstück für die neue Primarschule West in Weinfelden neigt sich sanft sowohl gegen Süden als auch gegen Westen. Gegen Südwesten verläuft das Gelände beinahe eben aus und bietet sich deshalb als ökonomisch und ökologisch sinnvolle Lage für die 3000 m2 grosse horizontale und zusammenhängende Spielwiese an.
Andererseits werden die Schüler und Schülerinnen das Schulareal vorwiegend über die Maienrainstrasse erreichen, weshalb die Projektverfasser im Nordosten einen zentralen Empfangs-, Schul- und Spielhof vorschlagen, um den sich die drei betrieblich komplett unabhängig nutzbaren Schulbauvolumen anlagern. So entsteht bereits ab der ersten Bauetappe ein massstäbliches Ensemble mit Schulgebäude, Turnhalle und Mehrzweckraum.
Auftragsart
Offener Projektwettbewerb in zwei Stufen
3. Rang
Visualisierungen
Raumgleiter, Zürich
Veranstalter
Primarschulgemeinde Weinfelden
- Mixed Use
- Art + Installation + Exhibition
- Retail + Stores
- Day Care + Kindergartens
- Schools
- Sport Halls
- Plazas
- Urban Developments
- Year
- 2012
- Project Status
- Under Construction




