Wohnüberbauung Webi-Areal Ost
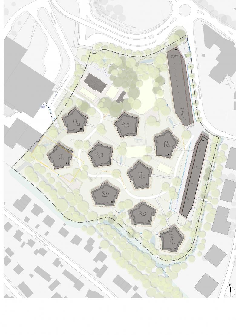
Die Überbauung reagiert auf die vorgefundene Parksituation mit bestehender Webi Villa und Baumbestand im Norden, sowie östlichem Dorfbach und Oberwasserkanal im Süden mit jeweiligen Bachhainen. Zwei lange Zeilen im Westen bilden zusammen mit der vorhandenen Landschaftskammer das Rückgrat des Quartiers mit Ausrichtung gegen Süden und Westen, sowie der Festung am Horizont. Der verbleibende offene Grünraum wird mit neun fünfgeschossigen Punkthäusern bespielt. Mit diesem Konzept entsteht einerseits der grösstmögliche zusammenhängende, bis an den natürlichen Siedlungsrand erfahrbare Aussenraum, weiter überdurchschnittlich grosse Gebäudeabstände – und die Villa samt Remise erhält deren respektvolle Situation als Teil eines neuen Ganzen.
Der nördliche Langbau Baufeld A bietet im Erd- bis 2.Obergeschoss Gewerbe- und Dienstleistungsflächen. Ein grosszügiger Durchgang im Erdgeschoss sichert den Zugang von der Strickereistrasse zum Park. In den beiden oberen, gegen die Strasse rückversetzten Geschossen entstehen 24 2 ½ - 3 ½ Zi Wohnungen, welche über einen gemeinschaftliches Terrassendeck im 3.Obergeschoss erschlossen werden. Sie sind als durchgesteckte Wohnungen mit Loggien Richtung Park konzipiert, deren Wohn- und Essbereich sich über die gesamte Gebäudetiefe erstreckt.
Baufeld B, der südliche ost-west orientierte Langbau, schafft mit Durchgängen im Erdgeschoss ebenfalls eine Durchlässigkeit vom Areal zum Dorfbach. Atelierflächen und eine Kita im Erdgeschoss beleben den vorgelagerten Platz. Über vier Treppenhäuser, deren Zugänge in den Durchgängen liegen, werden in vier Obergeschossen total 38 Mietwohnungen erschlossen. Der Wohnraum mit geschützem Aussenbereich ist nach Westen ausgerichtet, gegen Osten ragen vor den Küchen Balkone in den Grünraum des Dorfbaches. Im rückversetzten obersten Geschoss ist den Wohnungen gegen Westen eine grosse Terrasse vorgelagert.
In den Punktbauten erschliesst ein grosszügiges, von oben natürlich belichtetes Treppenhaus jeweils vier resp. fünf Wohnungen pro Geschoss. Die polygonale Volumetrie in Verbindung mit den auskragenden Gebäudeteilen an den jeweiligen Ecken ermöglicht allen Wohnungen eine gute Besonnung und attraktive Ausblicke. Das Wohnen, Essen und die Küche sind an den Gebäudeecken angeordnet und profitieren von einer zweiseitigen Ausrichtung. Gleichzeitig gliedert und differenziert die eingezogene Loggia die unterschiedlichen Nutzungsbereiche und verbindet die Raumfolge mit der Tiefe des Aussenraumes. Die dem Baufeld B benachbarten Punkthäuser im Miet-Standard sind über dieses mit einer gemeinsamen Einstellhalle erschlossen. Eine separate Erschliessung und Einstellhalle erhalten die vier westlichen Baukörper mit Eigentumswohnungen.
- Year
- 2017





