Haus F
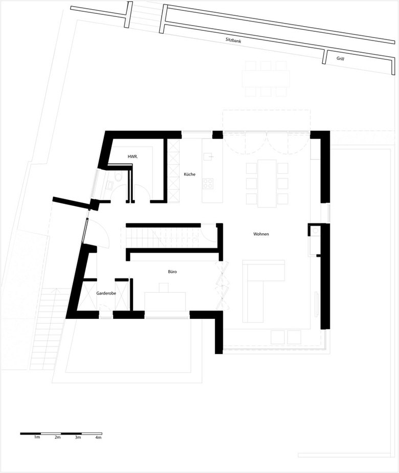
The view from the L-shaped panoramic window over the 900 year old village of Denkendorf, with its abbey in the centre, attracts everyone‘s attention. The heated window ledge of fairfaced concrete is therefore the most populär seat in the house. Clearly defined, minimalist in its form and material, the trapeze shaped three floor residential and office premise may appear cool at first glance. The large Windows open up the massive building, which init-ially seems quite closed, and allow views in and out from every aspect. Projecting parts of the building such as Win¬dows and garage, bring a rhythm to the facade and play-ful elements into the severe architecture. The projecting glass structure provides the living room with the neces-sary generous space, without increasing the total area of the house and therefore the building costs. The facade is plastered smooth grey. The tiled roof continues this co-lour and the building appears to be of one piece. Gutters and down pipes have been concealed. The anthracite co-loured aluminium framed Windows, Hush with the facade, modelled on Swiss design create a smooth, homogenous appearance. Cooking, eating and living area flow into one without the interruption of Supports or walls. The stairs form the core ofthe main living area, connecting the three floors and the various living areas. The kitchen faces the garden and opens on to the dining and living room. Adja-cent is a Utility room.
Client
privat
Size
300 m²
Team
Peter Ippolito, Gunter Fleitz, Minka Ludwig, Jing Zhao, Hadi A. Tandawardaja
Photos
Bruno Helbling
Magazines
01/2017 100 Deutsche Häuser
11/2016 100 deutsche Häuser
03/2013 VivaDecor (Ukraine)
01/2011 Decor (Russia)
07/2010 Casa Deco (Germany)
05/2010 Archidea (Ukraine)
02/2010 IW (South Korea)
08/2009 Einfamilienhäuser bauen (Germany)
01/2009 Architektur+Küche (Germany)
Books
01/2011 inSIDE; outSIDE Residence (China)
10/2010 Grüne Wohnträume (Germany)
05/2010 Global Trendy House Collection (China)
Online media
03/2016 AD (Mexico)
05/2012 freshome
- Year
- 2008






