Wohnhaus Surber Burri
«Raumplan in the archetype»
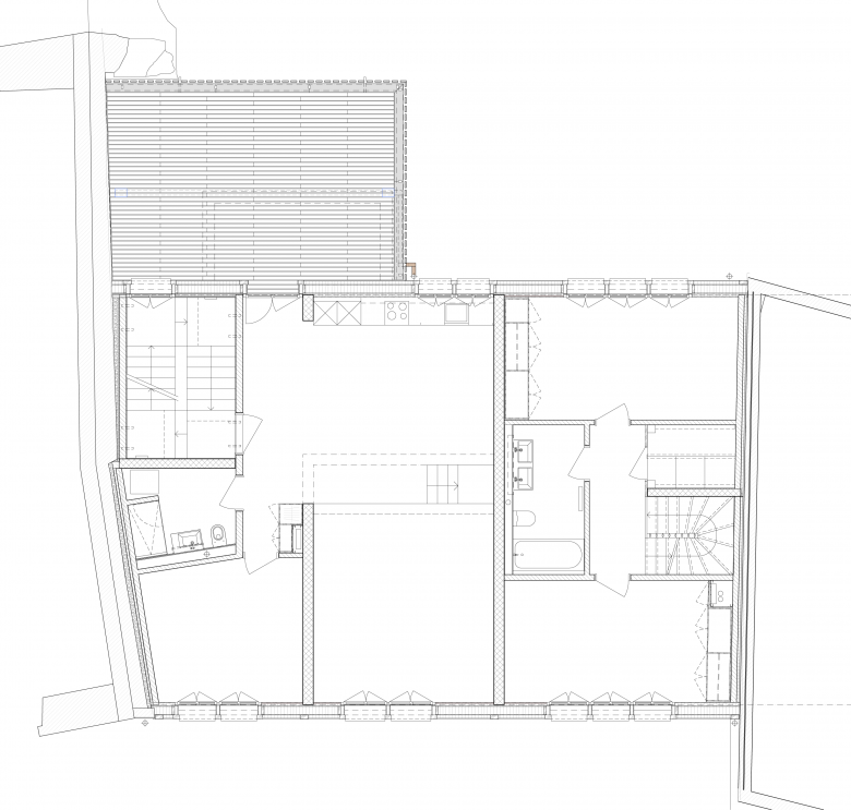
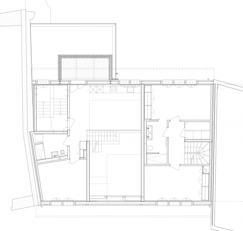
In the medieval town, which is under a preservation order, the new replacement building between the firewalls of its neighbours traces the profile of the existing buildings. The northern part is transformed into a wooden living room for the owners with a terrace above.
The central daytime areas of the owners’ large apartment and of the two smaller rented apartments are arranged above each other. Organised as a Raumplan, they penetrate the building from north to south. The bedrooms, bathrooms and service spaces flank on either side and have normal room heights.
The building shell is made as a self-supporting, insulated timber construction which, much like the rendered frame buildings found locally, expresses the internal layout of spaces externally. The surfaces of the concrete, masonry or timber walls in the interior are whitewashed.
- Year
- 2021
- Project Status
- Built
- Bauherrschaft
- privat
- Photography
- David Willen
- Termine
- 2019–2021









