Joint-Family Penthouse
An apartment is a typology mainly developed by the economy, developers and builders who benefit from the ease of standardization. We have accepted this standardization and allowed its connotations to affect our lives and lifestyles.
The Joint Family Penthouse is a look at breaking this standard plan-based typology and a search for room within it, for a step back into the formation of the house from its inhabitants.
The clients are a Marwari-Joint family of two brothers and, their respective wives and children, along with their parents. The site is a penthouse on the seventeenth floor of a building.
The intent is to break this typological context into a more personal and customized one. One which escapes from the stylistic and meaningless to the meaningful and pure.
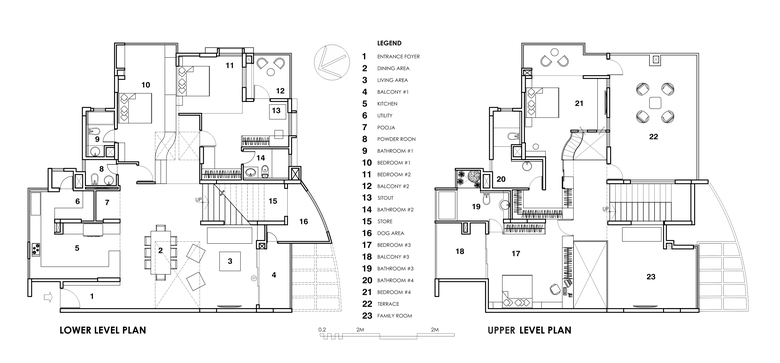
The plan emerges from a slate wiped clean. All the walls were broken and repositioned. Cut-outs were made to join the floors and develop changes in the basic volume offered.
The main idea was the living, breathing and functioning of this family. The brother and their wives were given the upper level for its privacy and the parents and children were on the lower level with the dining, living and other areas. The children’s bedroom also served as a guest room. So they are tucked into individual bunk niches, which become their spaces in the house. From here, they access the upper level and the play area, all under their grandparent’s watchful eye.
The wives would spend most of the day on the lower level with the retired grandparents in the kitchen, living and dining areas. These become the public and social areas of the house. The staircase is fashioned in a way where it becomes a space for gathering and discussion, and also a vantage over the children’s play area.
Two cut-outs are made to connect the private-upstairs and the public-downstairs, from which the brothers can overlook and engage into the dialogue of the house.
At a formal level, after a typical apartment entry to the house, a new and hidden volume explores itself. Showing this new unique side of it, the cut-out and passages become part of the void which resonates with the social dialogue in the new direction of the house.
The joint family penthouse, though an interior and renovation project, looks to ask larger questions than usually allowed by this brief; and in its bravery, it creates a confident, social cohesive that is consistent to its details as it is in its larger intent. The yellow wall, the wood and, the clear and minimal upstairs, each derived from the plural nature of the family members, coexist exactly like a family.
- Year
- 2013









