Collège Principal de Pully

© atelier brunecky
© atelier brunecky
© dja
© dja
© dja
© dja
© dja
© dja
© Zaborowsky
© Zaborowsky
© Zaborowsky
Year
2021
Auftraggeber
Ville de Pully
Bauingenieur
Schnetzer Puskas Ingenieure
Nachhaltigkeit, Gebäudetechnik, Bauphysik, Akustik
Raumanzug
Brandschutz
Balzer Ingenieure
Wettbewerb
2021
Aufgabe
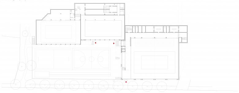
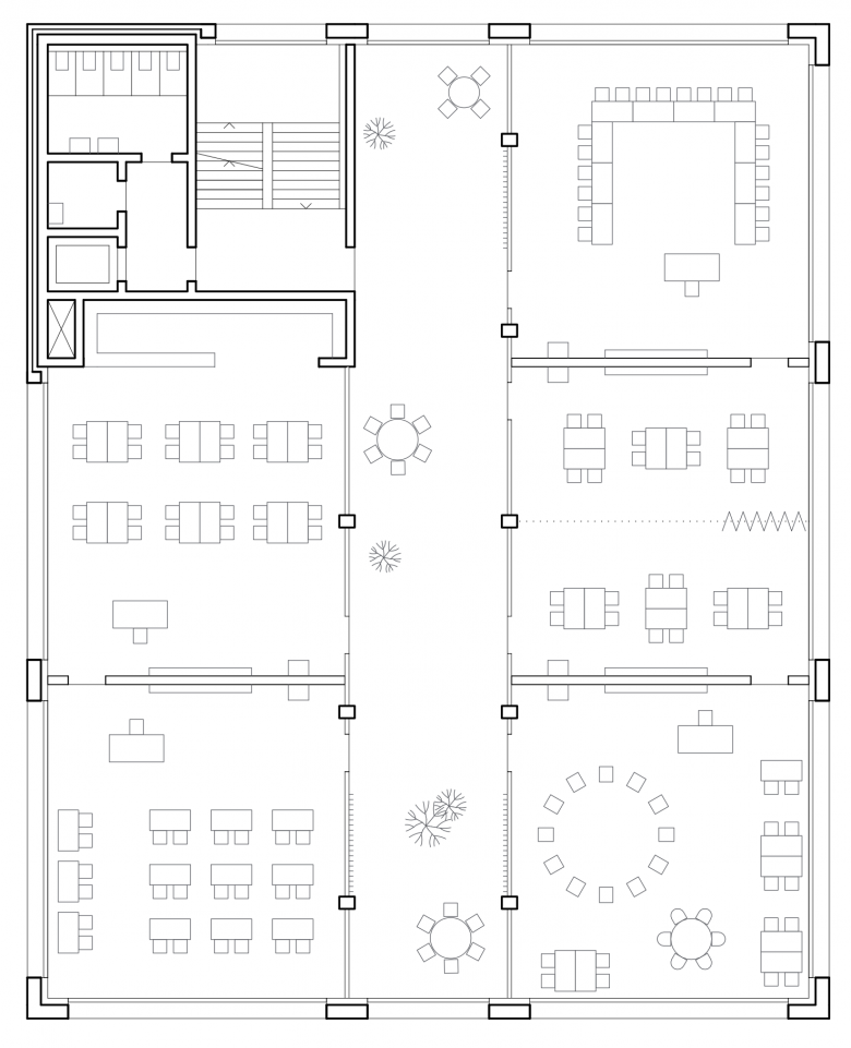
Erweiterungsbau für die Sekundarschule mit 11 Klassenzimmern, Bibliothek / Mediathek, Doppelturnhalle, Schulverwaltung

Other Projects by Derendinger Jaillard Architekten 

Schul- und Sportzentrum Champagne
Einfamilienhaus in Bern
Psychiatrische Universitätsklinik Rheinau
Primarschule Riethüsli St.Gallen
Haus Eber Zürich