Umbau Alterszentrum Rigapark
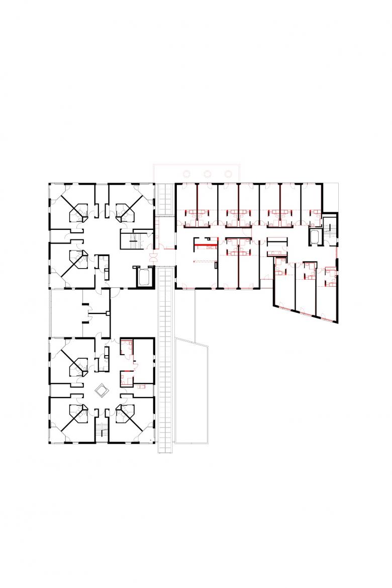
Das Projekt umfasst die Sanierung und Umbau des Alters- und Pflegezentrums Rigahaus. Im Erdgeschoss wurde der Speisesaal durch einen eingeschossigen Anbau aus Holz erweitert. Alle Verglasungen, Oberflächen, Schreinerarbeiten, Möblierung und Beleuchtung wurden erneuert. In den Obergeschossen wurden in den Pflegezimmern Duschen in den Nasszellen eingebaut, das Stationszimmer und die Aufenthaltsbereiche mit Küchen wurden ebenfalls saniert. Ein Pflegebad wurde zusätzlich eingebaut.
Alle Oberflächen und Schreinerarbeiten sowie Beleuchtung wurden in allen Pflegeabteilungen erneuert. Wo notwendig wurde das Haus statisch ertüchtigt, die Lüftungsanlage und Haustechnik modernisiert und andere Anpassungen gemäss aktuellen Brandschutzvorschriften vorgenommen. Ebenfalls wurden die Fenster und Absturzsicherungen ersetzt.
- Year
- 2017
- Project Status
- Built






