Schule und Sport im Ried

Gemeinde Köniz, Kanton Bern, Niederwangen-Ried, Switzerland
Quartier Papillon: bestehende Bauten (schwarz), geplante Bauten (grau) und Schul- und Sportanlage (rot) umrandet
Drawing © Büning-Pfaue Kartmann Architekten GmbH

Neubau Primarschule und Sportanlagen /.

Zwischen den mächtigen Berner Dächern des alten Bauernweilers östlich von Niederwangen und den lang gestreckten Zeilenbauten der künftigen Siedlung bekrönt der Neubau eine Landschaft aus Sportfeldern anstelle bisheriger Äcker.

Die riesigen Flügel des neuen Quartiers „Papillon“ sollen bis 2032 für rund 2‘500 Bewohner gebaut sein. Inzwischen wachsen die ersten der 5-geschossige Zeilen von der Ringstrasse aus in die umgebenden Felder. Ihre abknickende Setzung zeichnet die weiche Bewegung der vorhandenen Topografie nach.

Im Übergang schliesst die Schul- und Sportanlage an die Bauernhäuser des Weilers an. Die in einer Drehbewegung angelegten Flächen verzahnen Landschaftsraum und Siedlungsbau:
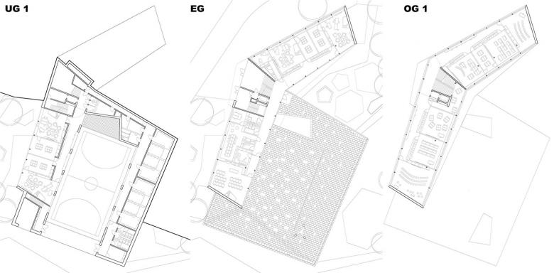
die Sportplätze treten als Plateaus aus dem nach Norden hin ansteigenden Terrain hervor. Das Pausenplatz-Plateau zuoberst, zur Ringstrasse hin, zeichnet die vergrabene Turnhalle ab und wird vom offenen Winkel des Schulhauses räumlich gefasst.

Die Schule überhöht mit ihrer bewegten Dachlinie die hügelige Umgebung. Sie beherbergt 8 Klassen für Kinder der Basis- und der Primarstufe samt deren Räumen fürs Werken, Musizieren und Mittagessen. Die Korridore wechseln von Geschoss zu Geschoss die Gebäudeseite und rahmen mit ihren tiefen Fensterbändern den Ausblick.

Das grosse Treppenhaus verbindet diese offenen Gänge, die im Schulalltag erweiterte Lernlandschaft sind. Die nach oben hin aufgelösten Treppenläufe machen das Haus in Querrichtung durchlässig.

Die Klassenzimmer der Jüngsten sind ebenerdig angeordnet und jeweils auf geschützte Aussenräume hin ausgerichtet. Schulleitung, Lehrerzimmer und Hort liegen auf der Pausenplatzebene. Im Obergeschoss blicken die Primarschulklassen auf den Schulhof herunter. Unterm Dach profitieren die Werkräume vom blendfreien Nordlicht der Strassenseite.

Das Schulhaus ist mit seinem Südflügel auf den Nebenräumen zur Sporthalle abgestellt. Hier im Betonsockel sind auch die Garderoben der Aussensportplätze untergebracht. Seine eingeschnittenen, grossen Öffnungen (Sporteingang Südseite und Lichthof im Norden) sowie die Gläser im Plattenbelag der Schulhofebene erlauben Hallenbetrieb ohne Kunstlicht.

Das mit der Topografie geformte Dach der Schule ist als vollflächige Solaranlage ausgebildet (110kWp). Der Energiebedarf für Heizen und Warmwasser wird über Erdsonden abgedeckt. Lüftungsanlagen mit Wärmerückgewinnung versorgen Schule, Halle und Garderoben (Minergie-P).

"Zone öffentliche Nutzungen" von Süden her, im Osten (rechts) wird die neue Siedlung entstehen
Photo © Damian Poffet, Bern
Ansicht Ostfassade und Schulhof
Photo © Ruedi Walti, Basel
Die profilierten Keramikfliesen changieren je nach Tageslicht unterschiedlich in Farbigkeit und Reflexion
Photo © Damian Poffet, Bern
Korridor am Kopf der Treppe im Dachgeschoss
Photo © Ruedi Walti, Basel
Grundriss Sockelgeschoss (Luftraum Halle), Erdgeschoss (Schulhof) und Obergeschoss (Primarstufe)
Drawing © Büning-Pfaue Kartmann Architekten GmbH
Eingangsfoyer mit Schulhaustreppe
Photo © Ruedi Walti, Basel
Querschnitt durch Schulhaus und Halle / Pausenhof
Drawing © Büning-Pfaue Kartmann Architekten GmbH
Blick durch die Turnhalle, Dachfenster im Schulhof obendrauf erlauben den Tageslichtbetrieb
Photo © Damian Poffet, Bern
Year
2021 (Inbetriebnahme; 2015 Wettbewerb, offen, 1. Rang)
Client
Gemeinde Köniz / Abteilung für Gemeindebauten
Team
Büning-Pfaue Kartmann Architekten, Grand Paysage Landschaftsarchitektur

Other Projects by Büning-Pfaue Kartmann Architekten 

Schulraumerweiterung Bützi
Switzerland
Erweiterung Schulanlage Gutenbrunnen
Schübelbach, Switzerland
Erweiterung Sekundarschule Hinterzweien
Muttenz, Switzerland
Neubau Volksschule Goumoëns
Bern, Switzerland
Entwicklung Gaswerkareal
Switzerland