Primary school centre Laufen
The school grounds are situated on a ledge of the Herzogsmätteli slope opposite the gate to the medieval town centre. The existing school buildings form a row parallel to this open space towards the slope. The new building extends the heterogeneous ensemble and concludes it to the east. With its gymnasium used also as a multifunctional hall, it serves public purposes as well as its school uses. The core of the urban planning idea was therefore to create a public urban space on the school grounds that could be used by residents, which extended spatially beyond the playground towards the sunken multifunctional hall. The school grounds were thereby enhanced into an important area where people from the community can meet.
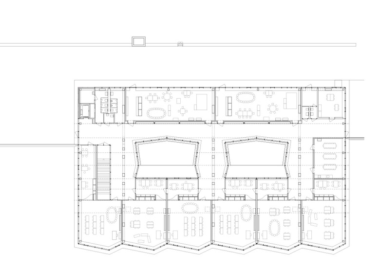
The school, with its yards and external references, combines with the surrounding green spaces. The new building is conceived as a pavilion structure placed upon the base that accommodates the gymnasium: the roof, which is supported by a trussed beam and two diagonal support axes and consists of a folded-plate, structures the upper level and serves as a load-bearing structure for the suspended interior supports of the intermediate floors. This enables efficient spanning of the large distance of the double gymnasium without additional joists.
The small-scale structure of the folded-plate roof, as well as the façade, allows the relatively large volume to adapt to the scale of the town and creates a unique interior roof landscape. The stamped Jurassic limestone concrete and the Jurassic limestone balustrade band on the upper storey reflect the location’s quarrying history and structure the new buildings within the row of the existing buildings.
Two-stage project competition in 2007, 1. prize
Construction
2009–2013
- Year
- 2013
- Client
- Stadt Laufen









