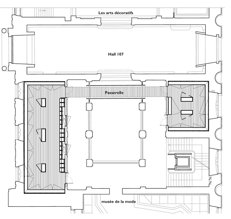
Gallery of Jewellery at the Louvre
As a correspondence between the historic architecture of the Louvre and an extremely contemporary scenography, the new passerelle connects the two galleries of jewellery.
The design and the signage of the galleries seem to make elements of building disappear – the jewels are perceived as floating in space.
The development of the project was based on the concept of mise en place of the jewels by Roberto Ostinelli.
The planning and realisation of the museum within the heart of the Louvre made a wide range of collaboration of various disciplines necessary: goldsmith, preservation of monuments, curator, lighting planner and structural engineer.
CLIENT
Les Arts Décoratifs (Museum in Paris)
ASSIGNMENT
Realization of a permanent jewellery museum
PLANNING TEAM
Roberto Ostinelli, scenographic designer
Urs Keller, architect
C&E, structural engineering
PROGRAM
Jewellery gallery and realisation of a passerelle
SURFACE
150 m² exhibition space
TIMELINE
Opening in June 2004
- Year
- 2004


