Wohnanlage Caspari-Viertel

Nördliches Ringgebiet, Braunschweig, Deutschland
Foto © Uwe Brodmann

Das Caspari-Viertel liegt zwischen Mitgaustraße und nördlichem Ringgleis sowie dem Mittel- und dem Bültenweg. Die Nähe zur Braunschweiger Innenstadt und zur Universität, aber auch die wohnraumnahe Versorgung durch eine Vielzahl von Dienstleistungs- und Freizeitmöglichkeiten, zeichnet das neue Stadtquartier aus.

In den drei Wohnblocks werden insgesamt 126 neue Ein- bis Vier-Zimmer-Wohnungen mit einer Wohnfläche zwischen 41 und 110 Quadratmeter geschaffen. Alle Wohnungen verfügen über großzügige Terrassen, Loggien bzw. Dachterrassen. Besonderen Wert hat der Bauherr auf ein nachhaltiges Energiekonzept sowie eine sinnvolle Wohnungsgestaltung gelegt: Die Energieeffizienz entspricht den Maßgaben des KfW-Effizienzhaus-55-Standards.

Neben dem besonderen Augenmerk auf die Dämmung der Gebäudehülle verfügen die Wohnungen über ein modernes Haustechnikkonzept mit einem Blockheizkraftwerk für die Warmwasserbereitung. Zur Reduzierung des Primärenergieeinsatz wird das BHKW mit Biogas versorgt. Die Wohnungen sind so gestaltet, dass die Grundflächen effektiv genutzt werden und moderne und flexible Wohnformen möglich sind.

Der hohen Qualitätsanspruch setzt sich auch bei der Außenraumgestaltung fort. Die Wohnanlage ist durch einen alten, schönen Baumbestand geprägt, der ein eigenes Flair in den Außenanlagen schafft. Für den ruhenden Verkehr steht eine zweigeschossige Tiefgarage unter den Wohnblocks zur Verfügung.

Foto © Uwe Brodmann
Foto © Uwe Brodmann
Foto © Uwe Brodmann
Foto © Uwe Brodmann
Foto © Uwe Brodmann
Foto © Uwe Brodmann
Foto © Uwe Brodmann
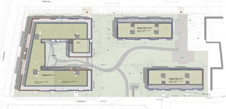
Zeichnung © S+S
Jahr
2019
Bauherrschaft
Baugenossenschaft Wiederaufbau eG
Entwurf
Schaub & Partner Architekten, Hamburg

Andere Projekte von Schneider + Sendelbach 

Sanierung und Erweiterung der Grundschule Heidberg und Einrichtung zum Ganztagsbetrieb
Braunschweig, Deutschland
BMW Training Center Shanghai
Shanghai, China
Studentisches Wohnen am Kläperberg
Hannover, Deutschland
Troya Müzesi - Museum für Troja
Çanakkale, Türkei
Landesrechnungshof des Landes Niedersachsens
Hildesheim, Deutschland