Erweiterung der Mensa Technische Hochschule Deggendorf
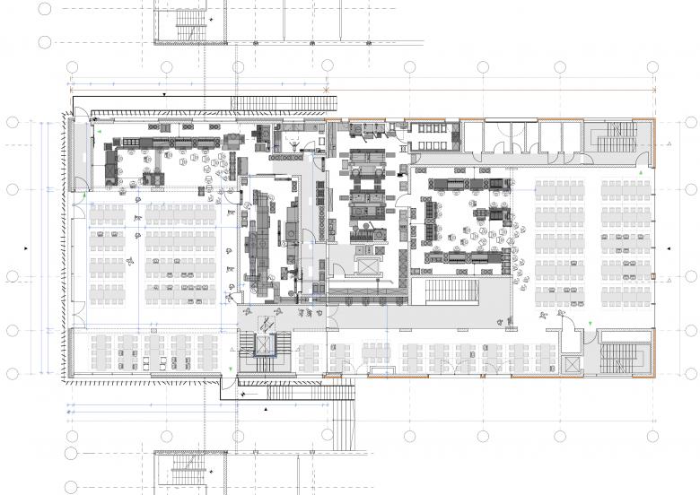
Mit der Erweiterung der Mensa der TH Deggendorf soll die Anzahl der täglich auszugebenden Essen von derzeit 600 auf 1.200 Essen angehoben werden. Die Anzahl der Sitzplätze im Bestand erhöht sich von ca. 180 Plätzen auf 376 Plätze. Es wird von einem vierfachen Platzwechsel ausgegangen, d.H. es halten sich ca. 400 Personen zur gleichen Zeit in der Mensa auf.
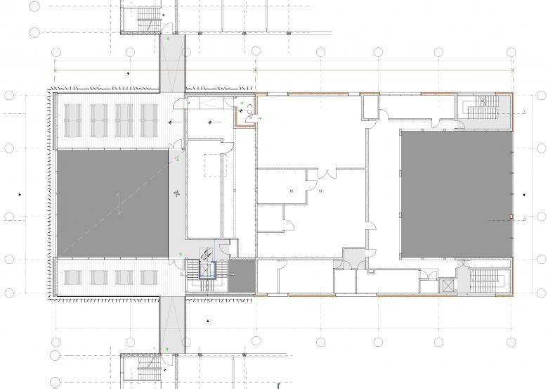
Die Erweiterung wird nach Westen Richtung Bogenbach direkt an den Altbau angebunden. Der Baukörper ragt aus der westlichen Bauflucht ca. 8,00 m heraus und nimmt Breite und Höhe des Bestandsbaus exakt auf. Hierin sind ein zweiter und dritter Speisesaal, eine weiter Essensausgabe sowie Ergänzungen der Küche und Haustechnik untergebracht. Auf der Nord- und der Südseite der Erweiterung , über der neuen Essensausgabe sowie dem Speisesaal 3, befinden je eine Dachterrasse, die über Brücken an die benachbarten Bestandsriegel angebunden sind.
Anlieferung sowie Feuerwehrzufahrt im Erdgeschoss westlich der bestehenden Mensa werden erhalten und liegen unterhalb der zukünftigen Erweiterung mit einer lichten Höhe von min. 4,20 m über dem Anlieferungsniveau . Ebenso wird das Erschließungs- und Rettungswegekonzept für den Bestand nicht geändert. Lediglich die 1,20m breite Haupttreppe, wird durch eine Treppe mit einer lichten Breite von 1,80m ersetzt.
Die Erweiterung erhält auf Ebene des Speisesaales zwei zusätzliche Rettungswege mit einer lichten Breite von ≥1,20m, die aus der Versammlungsstätte unmittelbar ins Freie führe. Die beiden Terrassen in Ebene 02, die über eine nicht notwendige Treppe und einen Personenaufzug über den neuen Speisesaal angebunden werden, erhalten ebenfalls zwei separate Rettungswege, die über zwei Brücken an die existierenden Treppenhäuser der benachbarten Baukörper A und D angeschlossen werden.
Der Küchentrakt wird auf Ebene der Speisesäle erweitert, die Küche selbst wird nicht umgebaut. Die umgebaute Speiseausgabe im Bestand sowie die neue Speiseausgabe in der Erweiterung sind stufenlos erreichbar und für Rollstuhlfahrer uneingeschränkt nutzbar. Die beiden Terrassen sind schwellenlos erreichbar und mit ortsfesten Tischen und Bänken ausgestattet. Es wird vorgeschlagen, 2 Plätze an den Tischen ohne Sitzbank auszuführen, damit ein/e RollstuhlfahrerIn direkt an den Tisch heranfahren kann.
- Jahr
- 2019 - 2024
- Bauherrschaft
- Freistaat Bayern vertreten durch das Staatliches Bauamt Passau
- Leistungsphase 6 - 9
- Kress Aumeier Architekten, Deggendorf




