Sanierung und Erweiterung Primarschule Thun-Lerchenfeld
Schweiz
Erweiterung histor. Schulanlage: Klassenzimmer Basis- u. Primarstufe, Hort, 2-fach Turnhalle usw /.
Das dem denkmalgeschützten Primarschulhaus im Aussenquartier Lerchenfeld gewidmete Areal ist bis heute zwar immer weiter gewachsen. Aber die nach der Turnhalle von 1953 dort errichteten Pavillons und Provisorien im Südwesten und Nordosten der Anlage fehlten als ephemere Kleinbauten die Grösse, das Ensemble stadträumlich zu befestigen und einen erkennbaren Zusammenhang über das Ganze herzustellen.
Die vorgeschlagene Erweiterung mit neuer Doppelturnhalle und Unterrichtsräumen für insgesamt 16 Klassen schafft die Möglichkeit, das historische Schulhaus ins Zentrum eines erneuerten Campus’ zu stellen, der in 2 Etappen über 2 grosse, jeweils zweigeschossige Neubauten entstehen wird: Zunächst weichen die Provisorien im Südwesten des Areals dem neuen Hallengebäude, das in seinem Obergeschoss die Unterrichtsräume der beiden Primarstufen-Cluster unterbringt. In einem zweiten Ausbauschritt ersetzt eine neue Zeile für alle 8 Basisstufenklassen die alten Kindergärten im Nordosten des Areals. In der dritten Bauetappe werden im Altbaukomplex die für das ganze Schulareal zentralen Funktionen wie Aula, Ganzstagesbetreuung, Schulbibliothek, Werkunterrichtsräume und Förderzentrum eingerichtet. Somit wächst über die 3 Ausbauetappen ein nach Altersstufen gegliederter Campus mit einer alternierenden Abfolge von Gebäuden und Freiflächen. Das Areal wird im Vollausbau v.a. entlang einer inneren, zentralen Erschliessungsachse in Längsrichtung erschlossen.
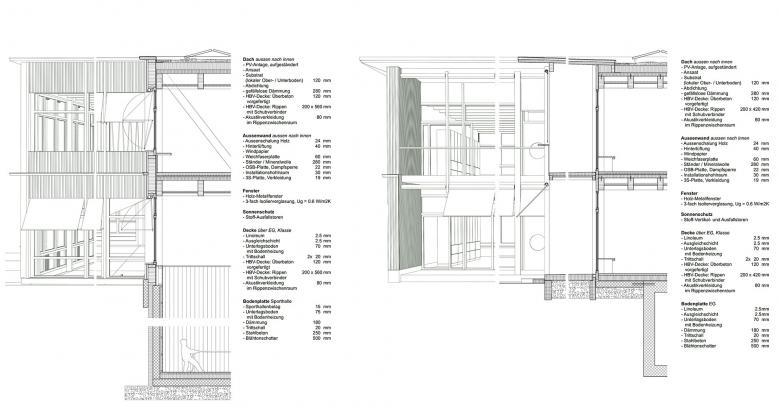
Die neue Doppelturnhalle wird am südwestlichen Ende des Areals um zwei Geschosse ins Terrain versenkt. Der Luftraum der Halle ragt ins umlaufend verglaste Erdgeschoss mit gedeckter Pausenhalle und den Musiksälen. Zwei Treppenhäuser erschliessen ab der Pausenhalle mit je eigenen Zugängen die beiden Cluster der 3. + 4. Klasse und der 5. + 6. Klasse im Obergeschoss sowie die getrennt nutzbaren Hallenteile im Untergeschoss. Oben legen sich beide Cluster mit jeweils 4 Klassenzimmern um eine grosszügige Multifunktionszone. Zwischendrin Lehrerzimmer mit Schulleitung und der Informatikraum. Drei kleine Innenhöfe bringen Tageslicht in das raumhaltige Fachwerk aus Holz oberhalb der Halle und erweitern die dortigen Unterrichtsflächen um geschützte Aussenklassenzimmer.
Am nordöstlichen Ende des Areals ersetzt eine zweigeschossige Schottenstruktur aus Holz die bestehenden Kindergärten und den Basisstufenpavillon durch acht gleichwertige Basisstufeneinheiten auf zwei Etagen. Die Basisstufeneinheiten bestehen jeweils aus Klassenzimmer, Gruppenraum, Garderobe und Nebenräumen und werden separat und direkt von aussen über eine vorgelagerte Laube erschlossen. Vier überdachte Aussentreppen gliedern die Vorzone am Haus und erleichtern den Kindern die räumliche Orientierung.
Im Ensemble der denkmalgeschützten Schulbauten werden schliesslich die zentralen Funktionen wie Aula (in der historischen Turnhalle), Tagesschule mit Mensa, Schulbibliothek, sowie die Unterrichtsräume für den Werk- und Gestaltungsunterricht und das Förderzentrum eingerichtet.
- Architekten
- Büning-Pfaue Kartmann Architekten
- Jahr
- 2023 (Projektwettbewerb nach Präqualifikation 2. Rang / 2. Preis)
- Bauherrschaft
- Stadt Thun / Amt für Stadtliegenschaften
- Team
- Büning-Pfaue Kartmann Architekten, Basel in Arbeitsgemeinschaft mit Bienert Kintat Architekten Zürich, ASP Landschaftsarchitekten AG Züirch
Dazugehörige Projekte
Magazin
-
-
-
-
Un despatx madrileny signa un visionari catalitzador urbà en West Palm Beach
Andrea Pala | 29.11.2018 -
L'arquitectura de Francis Keré en escena en el Museu ICO de Madrid
Andrea Pala | 28.10.2018









