Haus Dr. Gruber, 1994
Einfamilienhaus im Cottageviertel in Wien.
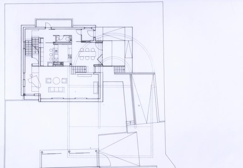
Auf einem relativ kleinen Grundstück waren großzügige räumliche Wünsche mit einer unterirdischen Garage für einen Autosammler unterzubringen.
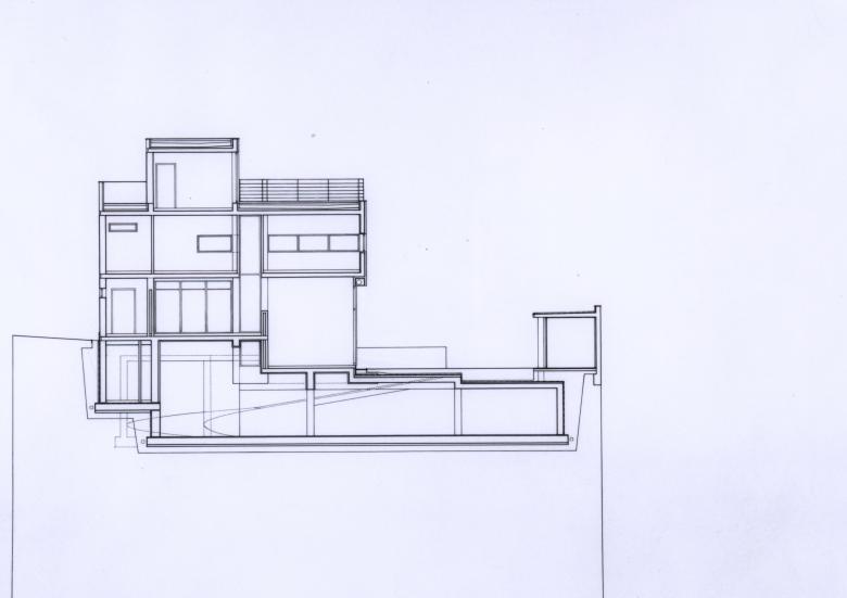
Das äußere Volumen folgt der von der Bauordnung möglichen maximalen Ausnutzung, durch Rücksprünge und Einschnitte kommt es zu einer Zerlegung des Volumens in maßstäblichere Komponenten, sodass besonders bei Diagonalansichten nicht das ganze Volumen in Erscheinung tritt.
Dies garantiert ein kompatibles Erscheinungsbild des Gebäudes innerhalb des Cottageviertel Kontexts.
Das Projekt erhält damit durch die abgestufte Bauweise einen zurückhaltenden, schlichten Charakter, der durch Fensterproportionen und Wandstruktur fortgesetzt wird.
Innenräumlich ist im EG eine loftartige maximale Ausnutzung des Raumes beabsichtigt, wobei ein zusätzliches räumliches Erlebnis durch die Ausbildung einer 2. Ebene entsteht, welche in den Hang geschnitten ist.
Durch verschiebbare Wandteile in verschiedenen Materialien können differenzierte räumliche Situationen geschaffen werden. Tagesbelichtungen von oben generieren zusätzlich eine abwechslungsreiche Atmosphäre.
- Architekten
- Hans Peter Petri
- Project Status
- Design
Dazugehörige Projekte
Magazin
-
-
-
-
Un despatx madrileny signa un visionari catalitzador urbà en West Palm Beach
Andrea Pala | 29.11.2018 -
L'arquitectura de Francis Keré en escena en el Museu ICO de Madrid
Andrea Pala | 28.10.2018











