Kino Rex
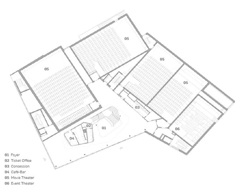
Das Kino Rex gilt als eine Herzensangelegenheit aller Bürger Thuns. Mit der Entwicklung des Bauprojektes ‘Rex Max’ in Thun wurde das alte Filmtheater an der Aarestrasse in den neu entstandenen Gebäudekomplex verlegt. Dies bot die Möglichkeit, ein neues innovatives Multiplex Kino zu gestalten. Nau2 wurde zusammen mit Holzer Kobler beauftragt, diesen neuen Veranstaltungsort, der fünf Auditorien mit einer Kapazität von insgesamt 1000 Sitzen bietet, zu gestalten. Die Planung beinhaltet nebst den Kinosälen ein Foyer, ein Restaurant und eine Veranstaltungslounge im ersten Obergeschoss. Verschiedene innovative Konzepte wurden dabei umgesetzt, wie z.B. ein spezielles Filmtheater mit Kabarettbestuhlung indem ein drei Gänge Menü während der Filmvorführung serviert wird. Programmatische Synergien und technische Innovationen lassen eine zeitgenössische Einrichtung entstehen, die alle Arten von Events – auch über das Kino hinaus von akademischen Konferenzen bis hin zu privaten Anlässen – veranstalten kann.
Der Besucher wird von einer inspirierenden Atmosphäre in schwarz, rot und weiß empfangen. Die öffentlichen Bereiche sind um eine komplexe, spiralförmige Form angeordnet, die eine große Treppe bildet, welche die Lounge im ersten Obergeschoss erschliesst. Dieses Volumen in rot definiert räumlich das Foyer, den Kartenverkauf, das Restaurant und die Bar sowie den Zugang zu den Betriebsräumen. Dynamische Formen und Neon-Beleuchtung, inspiriert vom ursprünglichen Kino Rex, lassen einen zeitgenössischen Kino-Ort entstehen, der sich an die Interieurs aus den 1950er Jahren anlehnt. Die renommierte Textildesignerin Claudia Caviezel entwickelte eine grafische Wand- und Bodengestaltung die auf Silhouetten, Filmsets und Farbverläufen basiert und ruft damit die Film Noir Periode ins Leben zurück. Diese Motive geben dem Raum eine emotionale Atmosphäre und bereichern das szenografische Konzept. Der Besucher taucht in eine Welt der Träume und Illusionen ein.
- Jahr
- 2014
- Project Status
- Gebaut
- Bauherrschaft
- Kinobetreibe Marti














