Two Paper Houses

Aerial view of the “book house” and its external seating area
© Jin Weiqi

Design team: LUO studio
Website: http://www.luostudio.cn/
Design and construction instruction: Luo Yujie, Lu Zhuojian, Wang Beilei, Hong Lun
Client: Zhengzhou Airport Park Expo Management Co., Ltd.
Location: 2F, Mall, Zhengzhou Garden Expo Park, Zhengzhou Airport Economy Zone, Henan
Construction & installation: Shinewood Building Technology (Beijing) Co., Ltd.
Project area: coffee house (22.26 sqm) + book house (38.48 sqm)
Corrugated cardboard supplier: Kunshan Three Doves Paper Design Studio Co., Ltd
Photography: Jin Weiqi, Luo Yujie
Time: Oct. 19 - 23, 2023

“From Space to Place: Social Changes, Design & Constructs in the Shadow of Globalization”
Exhibition time: Sept. 24, 2023 - Jan. 23, 2024
Chief curator: Zuo Jing
Curators: URBANUS, Hu Fei, Jing Siyang, Lei Yisong, Peng Yanhan, Pu Xi, Tu Fei, Wang Yanzhi, Zhang Xiaozhou, Zuo Jing Studio
Supporting team: Chengdu Associated Aesthetics Cultural and Creative Co., Ltd. / Wang Na, Feng Jie, Li Jiu’an, Li Zezhou
Exhibition VI/graphic design: PAY2PLAY
Graphic design: URBANUS, HU DESIGN, Ma Shirui, PAY2PLAY, Crisis and Ecological Design, d-SCHOOL, Central Academy of Fine Arts
Exhibition design: BOLOHO, URBANUS, LUO studio, Crisis and Ecological Design, d-SCHOOL, Central Academy of Fine Arts
Exhibition installation: Beijing Haiyu Art and Culture Co., Ltd., Shinewood Building Technology (Beijing) Co., Ltd.
Fonts: FounderType
Special thanks to: Henan Airport Investment Group, Zhonghui Group, Henan Zhonghui Culture Tourism Development Co., Ltd.

Following Cardboard-formed Exhibition Space 1.0 (the setting for "Back to the Future: Breaking the Time Barrier" exhibition at the Power Station of Art, 2021) and the Cardboard-formed Exhibition Space 2.0 (the exhibition space for Xinyang Book Market: Books 'N Tea, 2023), curator Zuo Jing again worked with LUO studio to continue exploration into the sustainable design practices of constructing exhibition space with corrugated cardboards. This project is the version 3.0 of cardboard-formed exhibition space, which comprises two unique “paper houses” designed for the exhibition debut at the Båt Odes to the Land in Zhengzhou Airport Economy Zone.

From cardboard-formed exhibition space to cardboard-formed “house”

As architects, LUO studio is not limited by the materials used for construction. Even for unconventional materials, the studio is able to tailor corresponding strategies and approaches for construction. This is an obsession, and seems to be a ritual.

Based on the previous practices of cardboard-formed exhibition space 1.0 and 2.0, LUO studio this time has built two “houses” by the use of corrugated cardboards, which is a development of their exploration on the design and installation of exhibition settings by using this paper-based material. The exhibition debut at Båt Odes to the Land, themed on “From Space to Place: Social Changes, Design and Constructs in the Shadow of Globalization”, includes 10 exhibitions and a couple of performances, film showings, forums and workshops. Key words like sustainable design and circular economy are highlighted by the event’s chief curator Zuo Jing, and thus are reflected in the two “paper houses” constructed in the exhibition space.

The exhibition at the Båt Odes to the Land is an essential strategy for the Zhengzhou Airport Economy Zone to renew and reuse an idle large-scale commercial complex built in the Zhengzhou Garden Expo Park, which was formerly a supporting facility for the 11th China International Garden Expo in 2017. The goal is to repurpose and activate the existing commercial space through art and design exhibition. Meanwhile, it’s important to build fun and ritualistic connection between the new exhibition space (repurposed from commercial space) and the public area. Exhibition is temporary, but space activation is a consistent goal. Therefore, it’s vital to link the art exhibition with urban life through active construction interventions. The public area requires functions like catering and reading to support the exhibition event. After an open recruitment campaign, local brands HUGS COFFEE and DOGHOOD settled in the public area of the exhibition venue, as the users of the “coffee house” and the “book house”. This is the background story of the two “paper houses”.

In line with the trapezoid plane

The two “paper houses” are set on a relatively large platform on the second floor of the venue, and the site is in a trapezoid shape on the plane, narrower at one end and wider on the other side. Corrugated paper has been used to construct the two “houses”. Compared to other building materials, it is more brittle and unstable when subjected to stress. To realize high level of stability, a circular plane becomes the best choice for the two “houses”.

Two “houses” with circular planes are configured on the trapezoid platform. The “coffee house” faces the narrow side of the platform to embrace visitors, as it’s closer to the elevator. Considering that an entire circular plane could make the space cramped, the designers divided a complete circle into two semicircles with varied sizes. This has ensured the stability of the curved spaces, while also creating an open take-away area and a more internal display and sales area. In addition, such design also guides the human flow towards the wider side of the trapezoid platform, and leads to the “book house” featuring a complete circular plane. The “coffee house” is a place for energizing and relaxing physically, while the “book house” caters to spiritual needs, with its circular design highlighting a sense of rituality.

Construction scale based on cardboard specifications

Based on two basic sizes of the corrugated cardboards, which are 3m x 1.5m and 2.4m x 1.2m, the “coffee house” is designed with a height of 2.4m for easier reach of items and ingredients, while the “book house” utilizes cardboards with a full height of 3m, to strengthen a sense of wrapping.

With consideration into site restrictions and the need for guiding the circulation, the “coffee house” adopts two separate semicircles on the plane. The drawback of such layout is that the structural mechanics relationship is relatively loose. For this reason, necessary small-section metal components are utilized to reinforce the entire construction, which also connect the diameters of the two semicircles into one integrated straight line. To enhance the stability, two parallel metal connecting rods are set on the top, which leads to surprising outcomes. In specific, the space in between the two metal rods can be used to place the logo sign of the cafe, and in turn the signboard further stabilizes the two metal rods on their fixed positions. The circular bookstore space has a diameter of 7m, and the whole structure is evenly divided into 18 full-height bookshelf units. The two ends of the central diameter are carved out with a door opening. The line connecting the two openings coincide with the line that demarcates two kinds of floorings, which builds a connection between the internal space of the bookstore with its external setting in the public space.

Rapid assembly & reversible construction

To meet the requirement for efficient and fast construction for the exhibition, the quantity of standardized components is minimized as much as possible. Many components have the identical specifications in the top and bottom ends, as well as front and back sides, which has effectively avoided human errors during installation and allowed for rapid assembly. The corrugated cardboard used is a paper-based material with a relatively high strength. Based on several rounds of tests in the factory and the previous design practices of Cardboard-formed Exhibition Space 1.0 and 2.0, it has been confirmed that this material can be repeatedly assembled, disassembled and reassembled many times, thus realizing long-term and repeated reuse. For example, the corrugated cardboard tables installed in Cardboard-formed Exhibition Space 1.0 were recycled by multiple public welfare organizations and were then assembled and reused, and the exhibition walls were repurchased and directly moved from the Power Station of Art in Shanghai to the Båt Odes to the Land in Zhengzhou Airport Economy Zone. Due to the reorganization of space, the bookshelves in Cardboard-formed Exhibition Space 2.0 underwent a process of "disassembly - removing - moving back - and reassembling”, after which the stability and aesthetics still remain well. It is conceivable that the two “paper houses” can also be dismantled after the exhibition and can achieve sustainable reuse as well like its predecessors.

Southwest aerial view of the “coffee house”
© Jin Weiqi
Northeast aerial view of the “book house”
© Jin Weiqi
Aerial view of the public seating area
© Jin Weiqi
The two “paper houses” viewed from the opposite side to the 2F platform
© Jin Weiqi
Aerial view of the “book house” and the 1F exhibition hall from 3F
© Jin Weiqi
Aerial view of the “book house” from 3F
© Jin Weiqi
Visitors coming out from the exhibition hall
© Luo Yujie
The “book house” in the morning
© Luo Yujie
Exterior of the “book house
© Jin Weiqi
Aerial view of the internal entrance of the “book house”
© Jin Weiqi
A child crossing the demarcation line
© Jin Weiqi
Readers in the “book house”
© Jin Weiqi
Mr. Hong reading in the “book house”
© Jin Weiqi
A reader taking a book on the shelf
© Jin Weiqi
Visitors sitting beside the glass handrail
© Luo Yujie
The “coffee house” viewed from outside the elevator hall
© Luo Yujie
The take-away area with posters at the “coffee house”
© Jin Weiqi
Take-away area of the “coffee house”
© Luo Yujie
Aerial view of the sales area inside the “coffee house”
© Jin Weiqi
Sales area in the “coffee house”
© Jin Weiqi
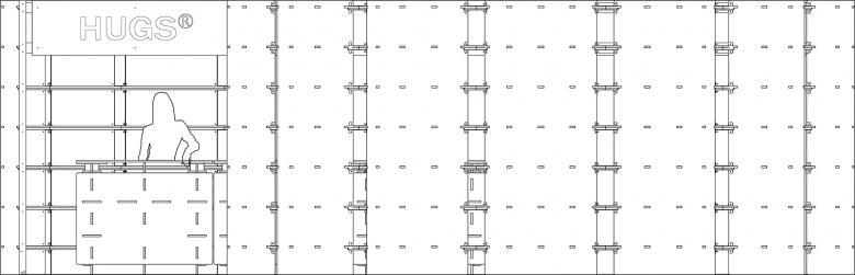
Reception area in the “coffee house”
© Luo Yujie
Interior of the “coffee house”
© Jin Weiqi
Reading area outside the “book house”
© Jin Weiqi
Construction process
© LUO studio
Construction process
© LUO studio
© LUO studio
© LUO studio
© LUO studio
© LUO studio
© LUO studio
© LUO studio
© LUO studio
© LUO studio
© LUO studio
Jahr
2023

Andere Projekte von LUO studio 

Yuntai Ice Chrysanthemum Display Shelves by LUO studio
置入式可变办公空间9.639
China
元和观村党群服务中心
China
珑府生活体验中心
Puyang, China
Furniture as Structure, Prepared Rehmannia Root Crafts Exhibition Hall