Headquarters
Il progetto della nuova sede dello studio ha convertito un’attività di 80 m² situata al piano rialzato di un edificio nel centro di Palermo, in uno spazio di lavoro dal carattere minimale, ottimizzando funzioni e superfici attraverso soluzioni su misura che rappresentano ormai uno dei caratteri distintivi della produzione dello studio.
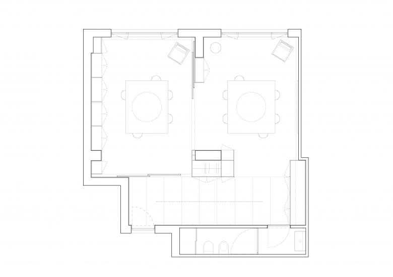
L’ambiente è pensato come un grande open space che in base alle necessità, può suddividersi in due zone indipendenti mediante un sistema di pareti scorrevoli che suddividono lo spazio di lavoro da quello riunioni, dove trovano posto due grandi isole da lavoro su disegno.
Le esigenze funzionali vengono completate con l’inserimento di due volumi contenti la materioteca ed il guardaroba all’ingresso, a questi si aggiunge una piccola area snack con ante scorrevoli a scomparsa.
La composizione di volumi e pareti mobili, viene inoltre completata da una parete rivestita di specchi che oltre ad illudere uno sdoppiamento visivo dell’intero spazio da lavoro, cela al suo interno i servizi igienici schermandoli completamente dal resto.
I materiali scelti tendono ad una armoniosa ricerca: la pietra locale in grigio di Billiemi si fonde con la resina generando cambi di pavimentazione che distinguono le diverse zone, il legno in noce canaletto sale invece sulle pareti contrasta le pareti, infondendo calore ed eleganza all’ambiente.
Grande cura è stata riposta nella scelta dell’illuminazione, utilizzando sistemi architetturali ad incasso alternati a corpi illuminanti dalle forme morbide, come i cerchi sospesi sulle isole da lavoro, con l’intenzione di contrastare il rigore geometrico dei sistemi su misura.
- Jahr
- 2023















