Le Ticle, Théâtre du Jura

Foto © Yves André

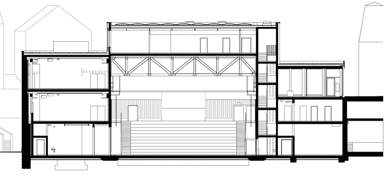
Das neue Jurassische Kantonstheater verknüpft die Überbauung mit der auf der Hügelkuppe gelegenen Altstadt. Es wird als kompakter Baukörper in die bestehende Topografie und hinter die erhaltene Fassade der alten Brauerei eingepasst. Der Publikumseingang erfolgt über die hangseitige Route de Bâle und den neuen Theaterplatz. Die dreiseitig verglaste Eingangshalle fungiert als Erweiterung des Stadtraumes in Richtung vom Foyer, das sich kaskadenartig rund um die Haupttreppe nach unten über zwei weiteren Ebenen entwickelt. Diese Geschosse ermöglichen den Zugang zum grossen Saal, auf Höhe der oberen, bzw. der unteren Ebene der Teleskoptribüne. Diese lässt sich nach Bedarf nach hinten in eine Wandnische einfahren und macht aus dem bestuhlten Theatersaal für 450 Zuschauer einen ebenerdigen Veranstaltungsraum für 840 Besucher. Dem Black- box-Konzept entsprechend ist die gesamte Theatertechnik über eine vollflächig begehbare Gitterdecke frei bespielbar. Die Saal-Akustik ist primär über die Wandoberflächen aus Wellbeton gewährleistet. Bewegliche Vorhangsflächen sowie Reflektionspaneele ermöglichen die Feineinstellung auf die Bedürfnisse der einzelnen Veranstaltungen. Die Bühne und ihre Nebenbereiche werden stufenlos über die untere Rue de la Brasserie angeliefert. Das gesamte Gebäudekonzept entwickelt sich aus den topografischen Verhältnissen und prägt die dicht bebaute Hügelflanke der Altstadt.

Foto © Yves André
Foto © Yves André
Foto © GXM Architekten
Foto © Adrien Barakat
Foto © Yves André
Foto © Adrien Barakat
Foto © Adrien Barakat
Foto © Adrien Barakat
Foto © Adrien Barakat
Foto © Adrien Barakat
Foto © Yves André
Jahr
2021
Project Status
Gebaut
Bauherrschaft
Fondation Théâtre du Jura
Totalunternehmer
HRS Real Estate SA, St.Sulpice
Bühnentechnik
Artsceno, Genève
Bauingenieur
SD Ingénierie Jura SA, Delémont
HLKS-Ingenieur, Bauphysik
Planair SA, Delémont
Elektroingenieur
open-ing SA, Givisiez
Kunst am Bau
Schlaepfer-Capt-Rigoli, Lausanne
Aussenbeleuchtung
Lumière électrique, Lausanne
Bauakustik
D'Silence acoustique, Lausanne
Brandschutz, Sicherheit
Holliger Consult, Ipsach

Andere Projekte von GXM Architekten 

Le Ticle Zentrumsüberbauung
Delémont, Schweiz
Multifunktionale Überbauung Gare des Eaux-Vives
Genf, Schweiz
Familien- und Generationenhaus
Zürich, Schweiz
Dauerausstellung MICR
Genf, Schweiz
Wohnwerkstatt
Dübendorf, Schweiz