Umbau Wohnung in Basel

Basel, Schweiz
Foto © Tom Bisig

Umbau und Sanierung einer Maisonettewohnung im Hochparterre und Sou Sol in einem mittelalterlichen Wohnhaus zwischen Oberen Rheinweg und Rheingasse an der belebten Rheinpromenade im Kleinbasel.

Foto © Tom Bisig
Bild © Tom Bisig
Foto © Tom Bisig
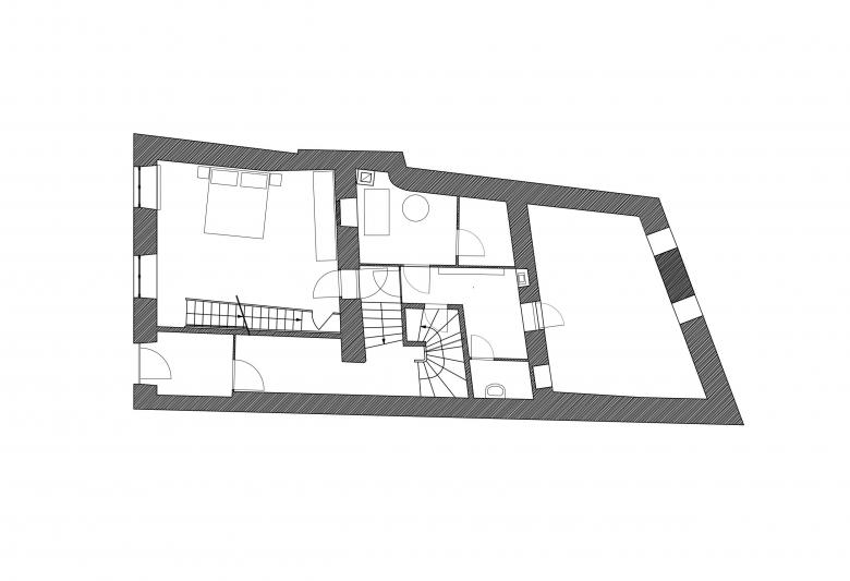
Sous Sol
Zeichnung © Gschwind Architekten AG
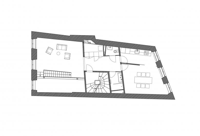
Hochparterre
Zeichnung © Gschwind Architekten AG
Jahr
2020
Bauherrschaft
privat

Andere Projekte von Gschwind Architekten AG BSA SIA 

Sanierung Einfamilienhaus in Therwil
Therwil, Schweiz
Riederhalle in Ried bei Kerzers
Ried bei Kerzers, Schweiz
Demenzhaus+ Stiftung Obesunne
Arlesheim, Schweiz
Genossenschaftliche Wohnsiedlung in Ettingen
Ettingen, Schweiz
Dorfzentrum «Grimseltor»
Innertkirchen, Schweiz