Doppelhaus in Strinz-Margarethä

Hohenstein, Deutschland
Video ©
Doppelhaus Luftaufnahme
Foto © Börries Götsch | Architektur

/ Doppelhaus am steilen Hang
/ 2 x ca. 165 m²
/ Holzständerbauweise an Steilhang
/ fertiggestellt

Von der Straße aus kaum sichtbar, entfaltet sich das Haus über drei Ebenen am 45° steilen Hang. Das Wohngeschoss auf der Straßenebene bietet, fast schon erhaben, einen Blick über den Ort und die sanften Hügel des Taunus. Die Terrasse fungiert als Aussichtsplattform, und auch die übrigen Zimmer genießen diesen außergewöhnlichen Ausblick.

Die Fassade des Hauses ist hell und vorvergraut, was einen markanten Kontrast zu unserem schwarzen Nachbarhaus bildet.
Holzständerbauweise mit Wärmepumpe, dezentraler Lüftungsanlage mit WRG und PV-auf dem Dach.

Straßenansicht
Foto © Börries Götsch | Architektur
Ansicht vom Tal
Foto © Börries Götsch | Architektur
Blick von unten
Foto © Börries Götsch | Architektur
Straßenansicht
Bild © Börries Götsch | Architektur
Blick vom Tal aus
Foto © Börries Götsch | Architektur
Luftaufnahme
Foto © Börries Götsch | Architektur
Küche
Foto © Börries Götsch | Architektur
Eingang
Foto © Börries Götsch | Architektur
Küche
Foto © Börries Götsch | Architektur
Wohnbereich
Foto © Börries Götsch | Architektur
Esszimmer mit Blick über das Tal
Foto © Börries Götsch | Architektur
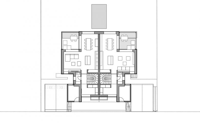
Erdgeschoß
Zeichnung © Börries Götsch | Architektur
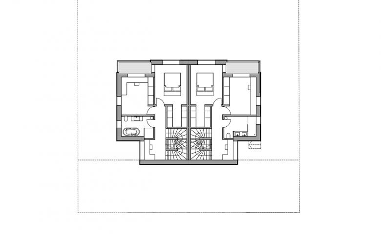
Untergeschoß 2
Zeichnung © Börries Götsch | Architektur
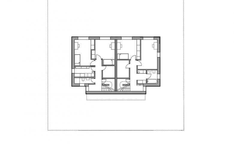
Untergeschoß 1
Zeichnung © Börries Götsch | Architektur
Küche
Foto © Börries Götsch | Architektur
Schnitt
Zeichnung © Börries Götsch | Architektur
Jahr
2024

Andere Projekte von Börries Götsch | Architektur BDA 

Haus in Aarbergen
Aarbergen, Deutschland
Haus in Schmitten
Schmitten, Deutschland
Pavillon Insel Siebenbergen
Kassel, Deutschland
Haus in Strinz-Margarethä
Hohenstein, Deutschland
Haus Burg-Hohenstein
Hohenstein, Deutschland