四号居住室内设计

三间房南里4号院, 100024 北京, China
hall way 1
Foto © 后时建筑

这是位于北京天坛生物制品股份有限公司历史建筑群院内的配套宿舍楼内的一套房子,始建于1982年的红砖楼房。同时房主有意保留大部分现有家具。因此对建筑以及保留家具的尊重成为我们这次设计的先决条件。
这套房子将承载我们的生活及办公的所有内容,共同使用的还有两只猫。因此编织生活和办公空间、猫和我的空间,是这个设计需要思考的平衡点,使得它们和谐并相互支持,而成为生命中的一份礼物,给等灯、喵喵。

bedroom
Foto © 后时建筑
livingroom
Foto © 后时建筑
detail of cat's tent
Foto © 后时建筑
hall way 3
Foto © 后时建筑
detail of shelf
Foto © 后时建筑
diningroom 1
Foto © 后时建筑
diningroom 2
Foto © 后时建筑
diningroom 3
Foto © 后时建筑
detail of shelf
Foto © 后时建筑
studio
Foto © 后时建筑
island bench
Foto © 后时建筑
detail of counter top
Foto © 后时建筑
drawing
Zeichnung © 齐玥
existing situation
Zeichnung © 后时建筑
placed new elements
Zeichnung © 后时建筑
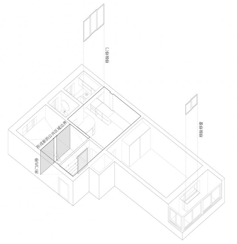
new boundary of the public room
Zeichnung © 后时建筑
Jahr
2023

Andere Projekte von beyondtime architects 

天悦壹号室内改造设计
北京, China
Service Center of Peony Performance Park
Fuzhou, China
Nanliang Workshop
Beijing, China
Nanliang Boutique Inn
Beijing, China
后时产品